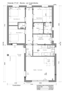
Planos – 117,4 – Murcia, 3H, 2B, 1C, Porche

  • hace 6 meses
  • 0

Comparar listados

Comparar