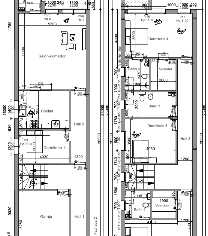
Casa media entre medianeras moderna prefabricada de 256 m2 Precio desde 280 568 €
Con fachada de hormigón y tejado plano de dos plantas con garaje, 4 dormitorios y 3 baños…
El dormitorio central de esta casa entre medianeras con ventana Velux se beneficia de la luz natural y la ventilación a través de la ventana de techo.
Con un patio trasero amplío la casa entre medianeras mejora la ventilación cruzada.
Las casas entre medianeras son viviendas de planta estrecha situada entre otras con las que comparte paredes.
Con el diseño adecuado, una casa entre medianeras se convertirá en una vivienda funcional, amplia y llena de luz natural.


Construcción de Viviendas VME en Facebook, ver más fotos de casas entre medianeras prefabricadas, pasivas y modernas de hormigón y mortero de cemento de alta calidad en Madrid, Valencia y toda España.
Por favor ingrese su nombre de usuario o dirección de correo electrónico. Recibirá un enlace para crear una nueva contraseña por correo electrónico.
