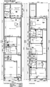
planos Casa entre medianeras 256 m2

  • hace 9 meses
  • 0

Comparar listados

Comparar