Casa moderna en U Girona 289m2 acabada en hormigón. Precio en Oferta:
Modelo de vivienda prefabricada perfecta para clientes que buscan un espacio cómodo en planta baja, sin renunciar a las mejores prestaciones en el hogar.
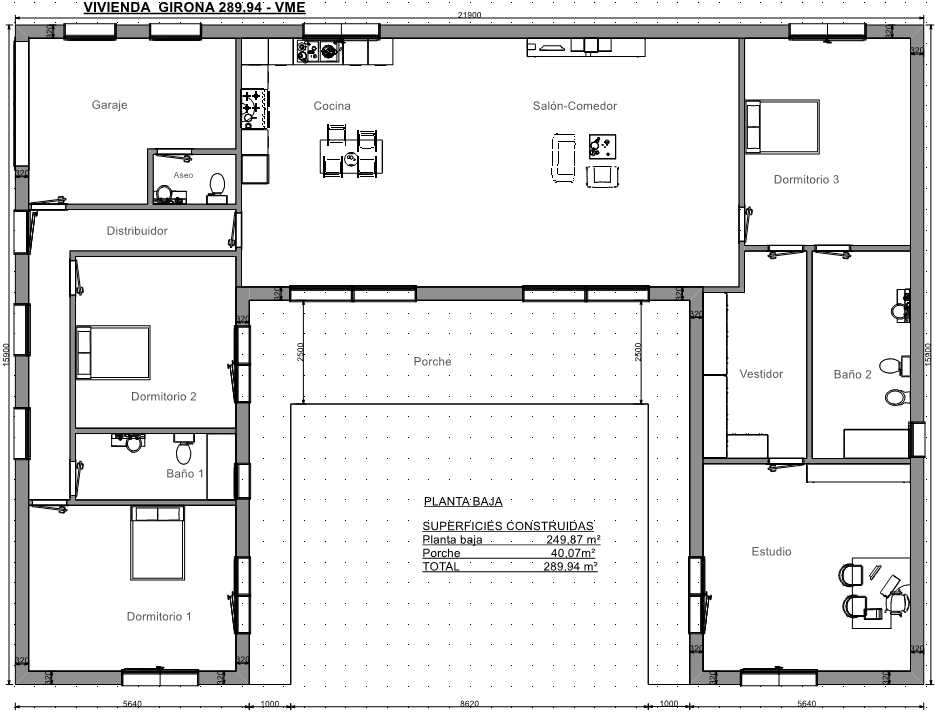
El diseño de una casa en forma de «U» en cuyo salón principal donde se ubican la sala, el comedor y la cocina es el eje principal, frente a ella hay un porche.
La estrategia del interiorismo ha apuntado con especial atención a los materiales y a una distribución espacial que favoreciera una cómoda circulación.
Salón-comedor y cocina abierta, cómodo y agradable para todos los habitantes de la casa, 3 dormitorios, 2 baños, aseo, garaje.
Y un porche para disfrutar de la vida al aire libre en cuanto llega el buen tiempo.


Construcción de Viviendas VME en facebook, ver más fotos de viviendas prefabricadas de alta calidad en Madrid y toda España.
Por favor ingrese su nombre de usuario o dirección de correo electrónico. Recibirá un enlace para crear una nueva contraseña por correo electrónico.
