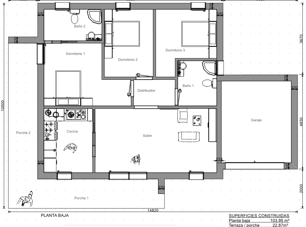
Este modelo es una vivienda moderna prefabricada con 3 dormitorios y 2 baños, cocina, salón y garaje.
Una casa moderna prefabricada espectacular que llama la atención por su diseño, el hormigón blanco en las fachadas y originalidad a la construcción.
El estilo de casa prefabricada minimalista se ha convertido en uno de los favoritos a la hora de elegir el diseño para fachadas de casas modernas.
Aplicados bajo un esquema monocromático, éstos aportan luz, hermetismo y elegancia.
El diseño minimalista que vemos en esta casa moderna prefabricada revela moderación, funcionalidad y claridad.
La combinación de materiales de construcción de esta vivienda prefabricada se limita principalmente a hormigón y cristal, un hogar familiar amplio y lleno de luz.
Así mismo, los muros y columnas de esta vivienda prefabricada moderna no tienen ningún tipo de decoración y los ventanales son amplios y altos.
Es importante tener presente que en el diseño minimalista predominan las líneas rectas y las formas geométricas simples de la casa prefabricada.
Así mismo, los muros de la vivienda prefabricada y columnas no tienen ningún tipo de decoración y los ventanales son amplios y altos.
Aquí la sencillez es un medio de encanto y expresión estética, ya que terminan revelando las características físicas de la casa moderna prefabricada, así como su aspecto.
Con nosotros, la calidad duradera de las casa prefabricadas modernas que construimos y el aspecto elegante y minimalista está garantizado.


Construcción de Viviendas VME en facebook, ver más fotos de casas modernas y casas tipo chalets.