Casa moderna prefabricada Madrid de 241 m2 con fachadas acabadas en hormigón.
Se trata de una vivienda pasiva de construcción mixta de alta calidad, de dos pisos construida a medida en 2022, con techos muy altos y de calidad pasiva con fachadas acabadas en hormigón.

¿Te imaginas construir tu casa moderna de ensueño además pasiva, con acabados de hormigón y mortero de cemento de alta calidad?
Viviendas VME te guiará y acompañará hasta hacerlo realidad.
Son casas modernas de calidad que aportan una sensación de confort térmico durante todo el año y que invitan a ser habitadas y disfrutadas.
El diseño moderno y elegante de esta casa prefabricada es 100% personalizado a gusto del cliente.
Las ventanas en esquina para conseguir una casa moderna prefabricada llena de personalidad, pero también de elegancia y estilo.
El plano de la planta primera de la vivienda prefabricada, muestra como todos los dormitorios y zonas comunes se distribuyen entorno a un distribuidor central conectado.
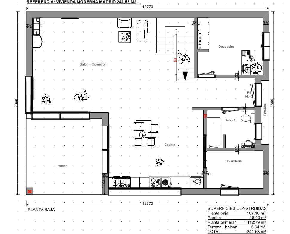
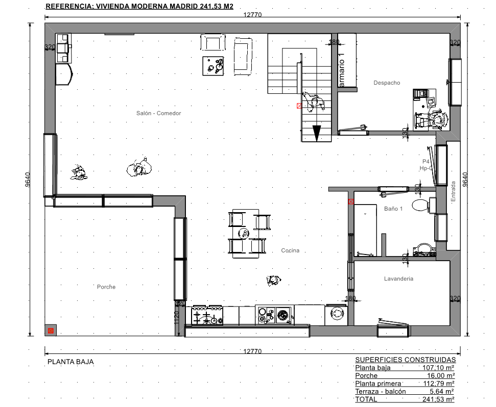
En la planta baja de la vivienda moderna tenemos un salón comedor grande con un aspecto muy luminoso, despacho, cocina, y un cuarto para lavadero y despensa.
Respecto al precio mostrado de esta casa moderna prefabricada: En esta opción, entregamos la casa prefabricada moderna con aislamientos ideales para casas pasivas prefabricadas o edificios de consumo casi nulo (nZEB).
Carpintería exterior de la casa moderna de PVC cumple con el estándar de casas modernas pasivas.
Cerramientos en OSB y revestimientos interiores modernos en PYL panel yeso laminado que reduce las fuerzas sísmicas y aumenta la protección pasiva frente al fuego de la casa moderna.
Con nosotros, la calidad duradera de las casa prefabricadas modernas que construimos y el aspecto elegante, moderno y minimalista está garantizado.


Construcción de Viviendas VME en facebook, ver más fotos de viviendas modernas prefabricadas de alta calidad en Madrid, Valencia y toda España.