Casa modular prefabricada moderna modelo Valencia 142m2 de alta calidad en Oferta.
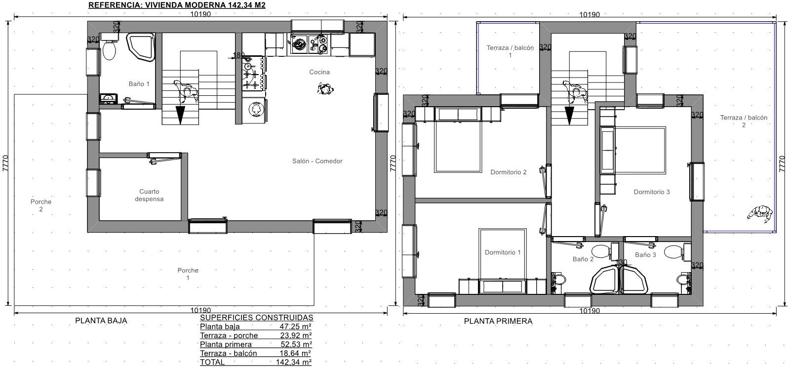
Vivienda prefabricada moderna, acabada en hormigón de diseño moderno cubicó con grandes ventanas y está distribuida en 2 plantas.
El diseño de esta casa modular prefabricada moderna pasiva va más allá de la funcionalidad y el confort.
Casa con 3 dormitorios, 3 baños, salón comedor, cocina, cuarto y despensa, porches y terrazas.
El estilo de esta casa modular prefabricada supone modernidad, tecnología y sobre todo comodidad en el hogar, con espacios amplios y luminosos, líneas sencillas…
La vivienda prefabricada moderna tiene una forma cúbica formada por un volumen superior cuya fachada frontal sobresale dos metros por encima del volumen inferior.
La forma cúbica de la vivienda modular moderna y el diseño de la fachada influyen la apariencia externa de la casa, así aprovechar la estructura y disponer de un gran porche en la planta inferior.
El proyecto de esta vivienda prefabricada moderna y cubica destaca tanto por su funcional diseño interior como por su estética nítida y minimalista, pero encantadora.
Una vivienda modular moderna que busca transmitir una estética vanguardista y un sentido de estilo único.
Diseñamos y construimos casas prefabricadas a medida.
Anteproyecto estructural de la casa modular moderna le sale gratis!
Las viviendas VME Cumple con el estándar de Casa Pasiva.
Buscamos la funcionalidad y la simplicidad en el diseño arquitectónico, la idea de que “menos es más”.
La adaptabilidad ante las tendencias actuales sin olvidar la innovación.
Sostenibilidad: todos los procesos de construcción son sometidos al cumplimiento de estándares eco-eficientes.


VME en Facebook Construcción de Viviendas VME para ver más casas modulares en Valencia y toda España.