Una vivienda prefabricada con fachada de hormigón con un diseño espectacular.
Casa prefabricada de 100m2 construidos de dos dormitorios elegante y funcional para una familia joven.
Esta moderna vivienda prefabricada unifamiliar de dos plantas es un equilibrio perfecto entre la apertura y la intimidad.
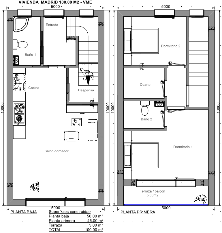
En la planta baja, un salón amplio para la zona de día, una cocina americana, un baño y una despensa.
En la planta superior dos dormitorios, un baño, un cuarto y una terraza.
El gran aislamiento térmico, envolvente estanca al exterior, control de puentes térmicos, uso de carpinterías de altas prestaciones.
Nuestras viviendas prefabricadas, gozan de gran solidez y resistencia a las condiciones meteorológicas adversas.
Adaptándonos a todos los estilos de casas, casas prefabricadas tipo moderno, clásico y funcional.
Además nuestras casas prefabricadas, cuentan con un diseño innovador que las convierte en una vivienda ideal, a un coste menor con mayor ahorro de energía.
Para más información respecto a la calidad constructiva de esta casa prefabricada, consulte artículos relacionados sobre construcción de Viviendas VME
Encuentra tu casa prefabricada de alta calidad que mejor se adapte a tus necesidades.


Visite nuestra pagina Facebook Construcción de Viviendas VME No te pierdes modelos de casas y fotos de casas prefabricadas modernas en proceso de construcción.