Una vivienda prefabricada moderna en planta baja muy acogedora, con fachada de hormigón:
Modelo de casa moderna perfecto para clientes que buscan un espacio cómodo en planta baja, sin renunciar a las mejores prestaciones en el hogar.
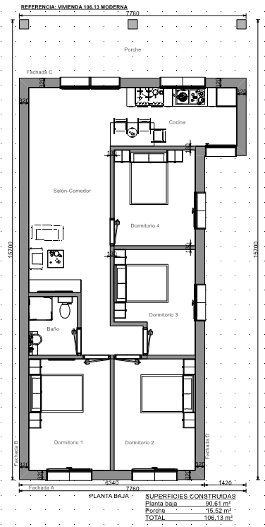
Es una casa moderna prefabricada en una planta con cuatro dormitorios, hay suficiente espacio para toda la familia ya sea una familia grande o pequeña.
Una de las mejores soluciones de diseño son los planos de casas modernas prefabricadas con 4 recámaras o dormitorios.
Valor de reventa, cuando se trata de una casa prefabricadas de alta calidad de la marca VME:
La marca VME de construcción de viviendas, es un aval que garantiza su calidad y la base para que los consumidores confíen.
Una casa prefabricada de alta calidad con más habitaciones, dispondrás de más espacio de almacenamiento, como armarios o vestidores.
Optar por una vivienda prefabricada de una planta garantiza una buena accesibilidad y comodidad (frente a casas de varias alturas).
La cocina, el estar y el comedor de la casa prefabricada comparten un mismo espacio:
En este plano de casa prefabricada moderna de cuatro habitaciones con un baño, el espacio se aprovecha al máximo, con dormitorios y una zona de día abierta.


VME en Facebook Construcción de Viviendas VME para ver más casas prefabricadas modernas en Huesca y toda España.