Casa prefabricada moderna120m2 precio 123.290 euros en Oferta.
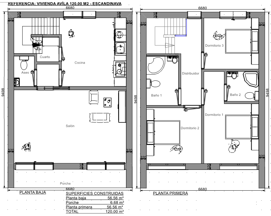
Modelo de vivienda Ávila 120m2 con 3 dormitorios entre medianeras con fachada de hormigón.
Construimos y viviendas prefabricadas con estilo escandinavo, creamos entornos cómodos, alegres y luminosos.
El objetivo de nuestros diseñadores de viviendas es mezclar por un lado, estructuras sólidas de madera y acero, y por otro lado, el aprovechamiento de la modernidad a la hora de fabricar la vivienda.
El estilo de casas prefabricadas escandinavo se caracteriza por ser minimalista, funcional y acogedor.
El estilo de casa prefabricada escandinavo se centra en la simplicidad y en la creación de espacios luminosos y confortables.
Las viviendas prefabricadas escandinavas suelen tener paredes blancas.
Las líneas de las casas prefabricadas estilo escandinavo son limpias y simples, sin adornos excesivos ni detalles ostentosos.
Esta tendencia de diseño y arquitectura se originó en los países nórdicos como Dinamarca, Noruega, Suecia, Finlandia e Islandia.
Algunas de las características clave de este estilo de casas prefabricadas son: simplicidad, colores claros, funcionalidad…
El estilo escandinavo de construcción se enfoca en la funcionalidad y la practicidad.
La luz natural es muy importante en el estilo de casa prefabricada escandinavo, por lo que las ventanas suelen ser grandes.
El estilo de vivienda prefabricada escandinavo podría ser la opción perfecta para ti.


VME en Facebook Construcción de Viviendas VME para ver más casas prefabricadas estilo escandinavo en Ávila y toda España.