Casa prefabricada 120m2 – Una casa prefabricada de construcción sostenible con fachada de hormigón blanco en una playa de España.
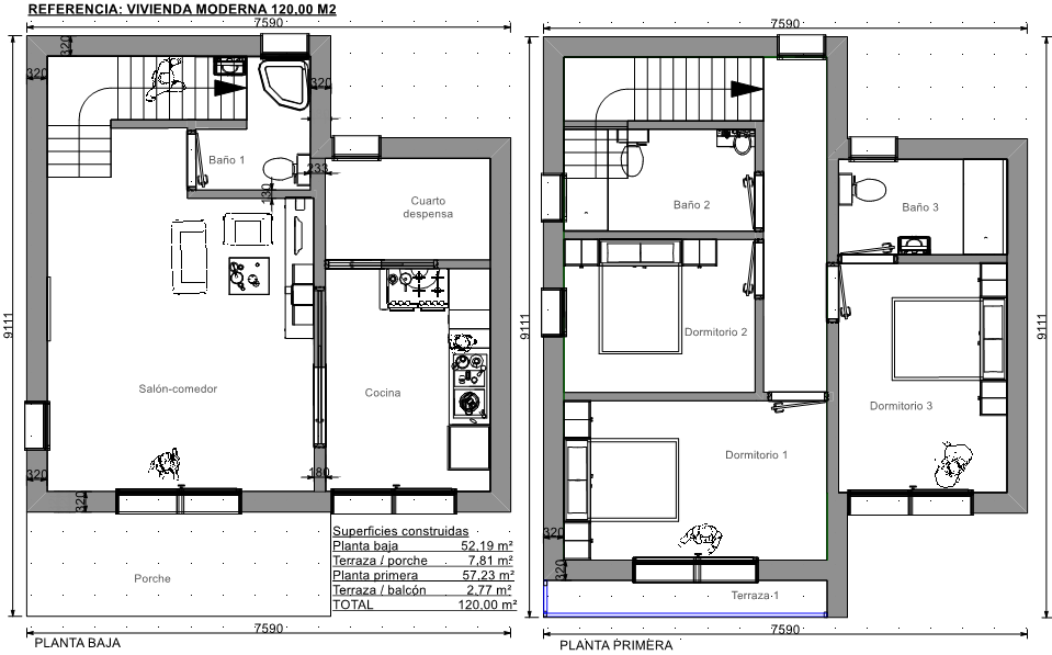
Esta vivienda moderna prefabricada dispone de 3 dormitorios y 3 baños, cocina con despensa, porche y terraza.
Su superficie total es de 120m² y está pensada para personas que buscan un aspecto diferenciador e innovador.
El diseño busca ser un ejemplo de casa prefabricada 120m2 moderna prefabricada y arquitectura sostenible de bajo coste con soluciones que causaran bajo impacto en el medio ambiente.
Esta vivienda prefabricada familiar ha unido el diseño contemporáneo con la sostenibilidad, un espacio acogedor con ventanas de generosas dimensiones.
La vivienda prefabricada moderna incorpora los principios de sostenibilidad , gracias a su nivel constructivo, a su aislante térmico y acústico cumple con el estándar de Casa Pasiva.
Para resolver las grandes luces se utilizará vigas de madera laminada GL24H de grandes dimensiones 100, 150 x 220, 400 mm de sección. Ó según anteproyecto estructural de la casa prefabricada.
Gracias a esta estructura aislada y sobre dimensionada obtenemos los parámetros de resistencia mecánica, estabilidad y seguridad.
Construcciones sólidas y durables con protección pasiva contra incendios, dándonos la seguridad de la aplicación de toda la normativa vigente para este tipo de estructuras.
Con nosotros, la calidad duradera de las casa prefabricadas modernas que construimos y el aspecto elegante y minimalista está garantizado.


VME en Facebook Construcción de Viviendas VME para ver más casas prefabricadas modernas pasivas en Valencia y toda España.