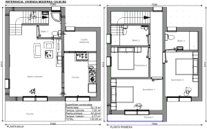
planos Casa prefabricada 120m2, planos VME

  • hace 2 años
  • 0

Únete a la discusión

Comparar listados

Comparar