Casa prefabricada 125m2 Málaga con 3 dormitorios.
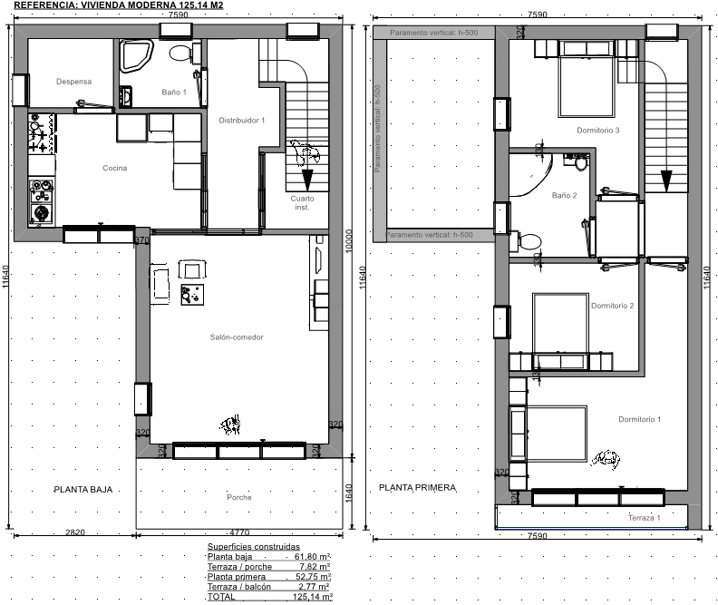
La planta baja de la casa prefabricada moderna se distribuye en vestíbulo, baño de visitas, cocina, comedor, salón y porche.
En la planta superior de la vivienda prefabricada moderna se encuentra la zona de noche, con tres dormitorios.
El dormitorio principal de la vivienda dispone de un frente acristalado con vistas panorámicas.
Mayor confort térmico en la vivienda reduciendo de manera drástica el consumo energético en climatización a lo largo de todo el año.
Menor impacto para el medio ambiente gracias a la reducción de la huella ambiental desde su construcción prefabricada.
La construcción de esta casa Prefabricada 125m2 ecológicas también presta especial atención a la reducción de la presencia de puentes térmicos.
Carpintería exterior de la Casa Prefabricada 125m2 prefabricada de PVC con vidrios triple acristalamiento tipo Casa Pasiva, ha sido concebido para obtener una buena eficiencia energética.
Cerramientos y revestimientos estructurales de la Casa Prefabricada 125m2 que reduce las fuerzas sísmicas y aumenta la protección de la estructura frente al fuego.
Nos adaptamos a todos los estilos de viviendas: Modernas, Contemporáneo, Minimalista, Mediterráneo.

