Vivienda moderna pasiva económica de construcción prefabricada con fachada de hormigón y grandes ventanales.
Una casa prefabricada 130m2 moderna pasiva de alta calidad, enlucido de fachadas exteriores con hormigón color a elegir, también se puede ampliar de acuerdo al crecimiento familiar.
Vivienda moderna 130m2 prefabricada con hermosa fachada que combina materiales como hormigón blanco y vidrio.
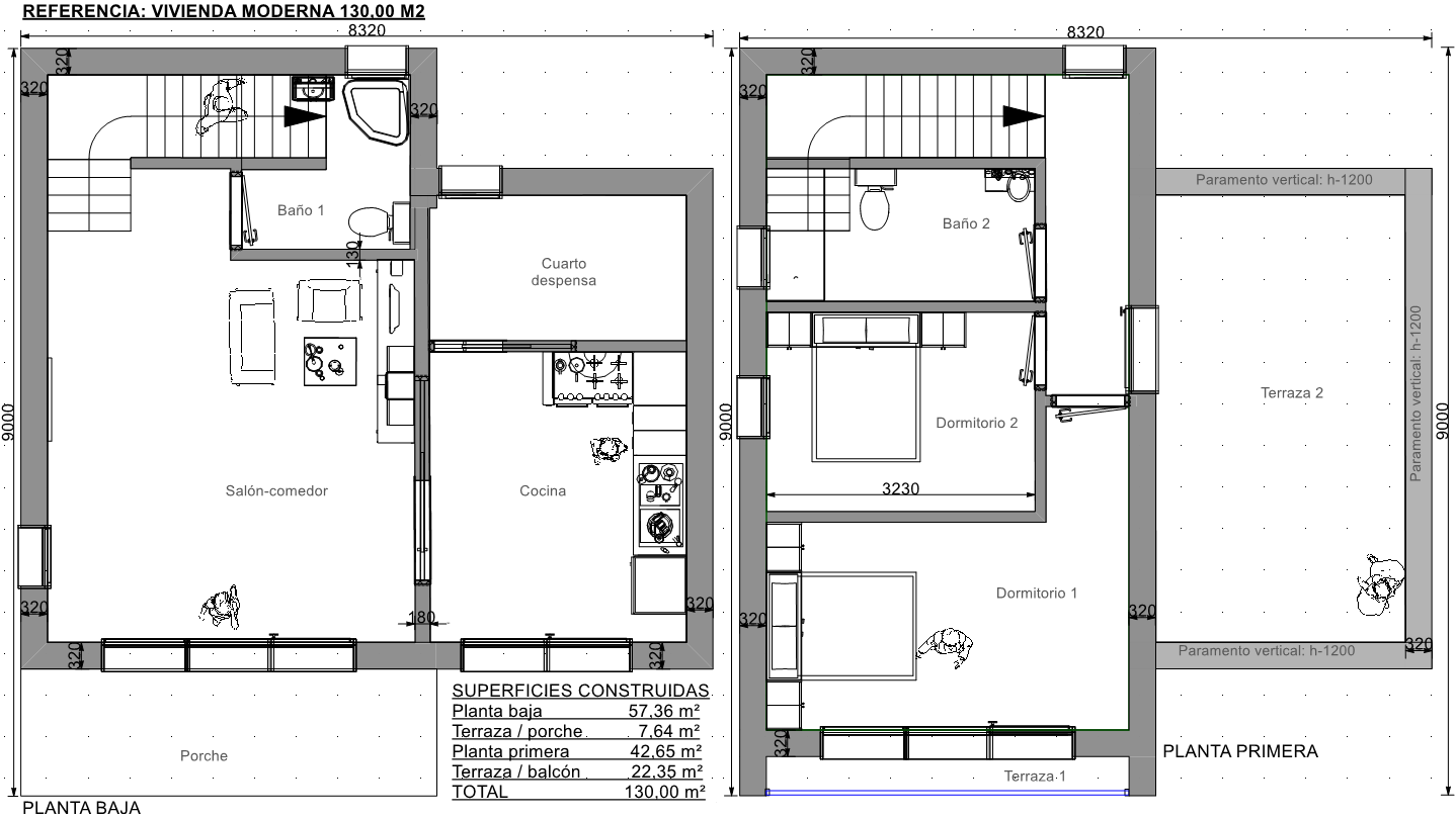
Esta casa prefabricada 130m2 moderna prefabricada tiene 2 dormitorios, 2 baños, 1 salón amplio, cocina con despensa, una terraza para el dormitorio 1, también tiene una gran área social con una terraza que lleva al exterior.
Ayudamos a solucionar los puntos críticos y a conseguir costes óptimos de construcción de la vivienda prefabricada.
Contigo todo el camino, creamos tu vivienda prefabricada de alta calidad a medida.
Viviendas modernas sostenibles parte de los principios de la arquitectura local para integrarse con el medio ambiente.
La sostenibilidad de una vivienda prefabricada de alta calidada es una parte fundamental de la arquitectura moderna y se refleja en la elección de materiales y el diseño inteligente.
En esta opción, entregamos la vivienda prefabricada moderna finalizada en el exterior y con revestimiento básico en el interior con aislamientos ideales para casas pasivas prefabricadas o edificios de consumo casi nulo (nZEB).
Construimos la casa prefabricada moderna con revestimiento de la cubierta, acabado final en fachadas de hormigón con sistema SATE y revestimiento en cemento coloreado.
Ventajas Viviendas VME:
Construimos chlates de madera, casas modernas, casas prefabricadas, casas pasivas con carácter. Cada modelo de vivienda prefabricada se puede personalizar según sus expectativas.
Desccubre la casa prefabricada de alta calidad que mejor se adapte a tus necesidades.


Visite nuestra pagina Facebook Construcción de Viviendas VME No te pierdes nuestras fotos de casas prefabricadas y viviendas modernas en construcción.