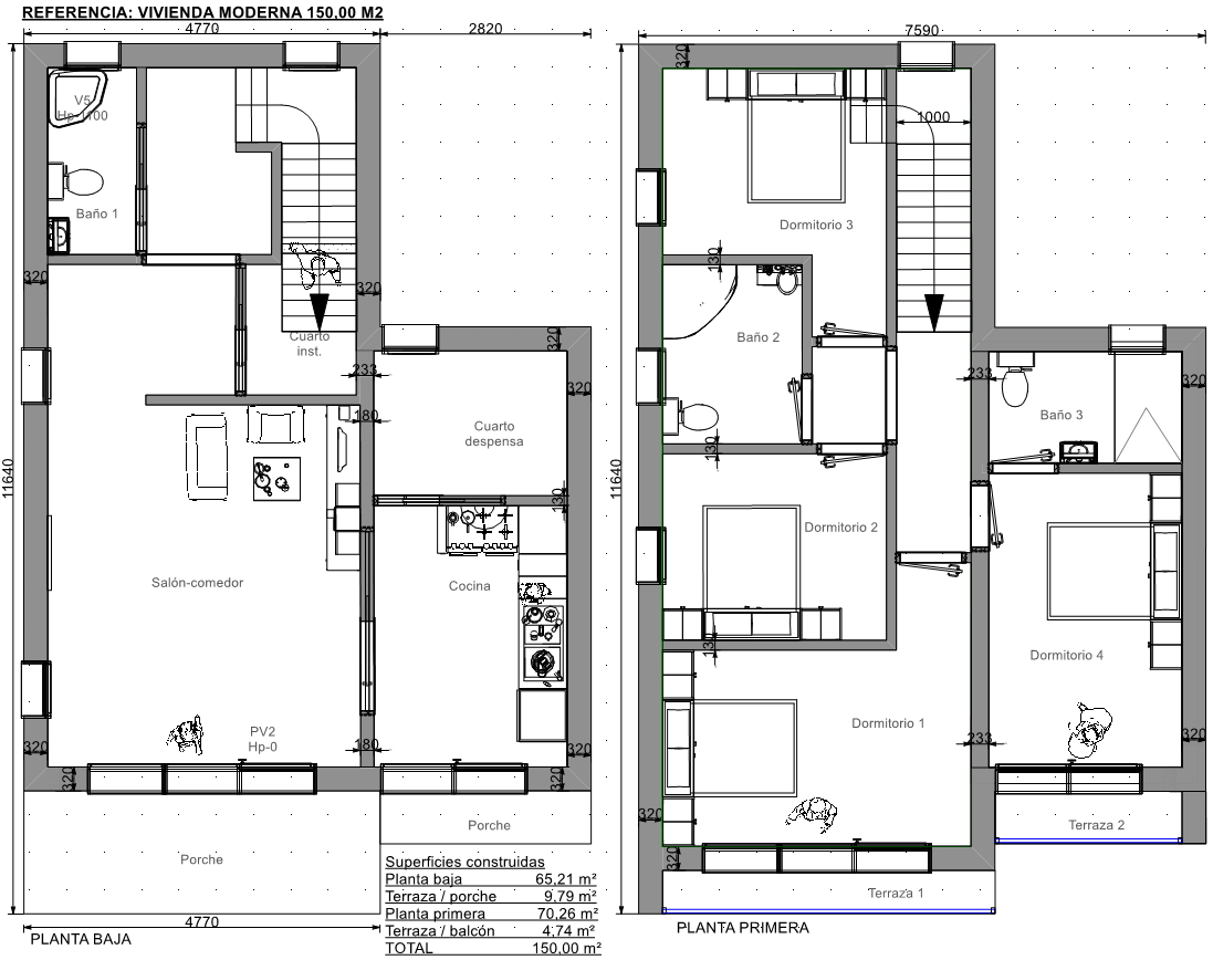
Casa prefabricada 150m2 construidos con 4 dormitorios.
El modelo Granada 150 m2 es una acogedora vivienda prefabricada moderna con fachada de hormigón y grandes ventanales.
La casa prefabricadas VME Calidad Garantizada, pasan por controles de calidad rigurosos, asegurando una construcción duradera y resistente.
Gracias a la tecnología avanzada y los materiales de alta calidad, estas viviendas prefabricadas suelen ser más eficientes energéticamente.
Viviendas modernas prefabricadas VME están diseñadas con un enfoque ecológico, utilizando materiales sostenibles y técnicas de construcción que reducen el impacto ambiental.
Aunque las casas prefabricadas VME requieren una inversión inicial, a largo plazo, suelen ser más económicas debido a la calidad constructiva….
Utilizamos materiales de construcción de alta calidad, sobre todo aislamientos ideales para casas pasivas o edificios de consumo casi nulo (nZEB).


VME en Facebook Construcción de Viviendas VME para ver más casas prefabricadas modernas pasivas en Granada y toda España.
Por favor ingrese su nombre de usuario o dirección de correo electrónico. Recibirá un enlace para crear una nueva contraseña por correo electrónico.
