Casa prefabricada Alicante de 138,57m2 construidos, con 3 dormitorios y con precio asequible en oferta.
Es un modelo de casa prefabricada moderna de alta calidad con fachada de hormigón.
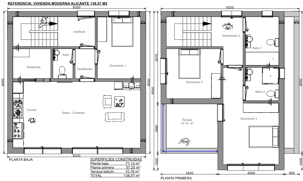
Distribución de la casa prefabricada moderna modelo Alicante:
En la planta baja, salón comedor muy amplio, cocina, un distribuidor, despensa, un aseo, un dormitorio.
En la planta alta, un distribuidor, dos dormitorios, un baño y una terraza.
Esta vivienda prefabricada moderna de dos plantas desarrolla el programa para una familia amplia en un volumen compacto de 138, m2.
Las líneas rectas de la casas prefabricadas modernas le dan vida a una arquitectura simple y limpia.
Las fachadas de hormigón de las viviendas modernas prefabricadas son un claro ejemplo de modernismo, sin dejar a un lado su profundo enfoque minimalista.
La casa prefabricada VME modernas conjugan una gran variedad de materiales constructivos. Algunos de los más populares son:
Hormigón, Piedra, Vidrio, Cristal, Madera, Hierro, Mármol.
Con respecto al precio de la casa prefabricada Alicante:
En esta opción, entregamos la casa prefabricada con aislamientos ideales para casas pasivas prefabricadas o edificios de consumo casi nulo (nZEB).
Casa prefabricada moderna con la teja puesta, acabado final en fachadas de hormigón con sistema SATE y revestimiento en cemento coloreado.
Carpintería exterior de PVC de alta calidad para casas prefabricadas pasivas.
Cerramientos completos de la casa prefabricada exteriores, interiores que reduce las fuerzas sísmicas de la casa prefabricada y aumenta la protección frente al fuego.
La estética y la sostenibilidad se combina, creando nuevos estilos con lo mejor de cada una de estas corrientes.


VME en Facebook Construcción de Viviendas VME para ver más casas prefabricadas modernas pasivas en construcción ó ya finalizadas en Alicante y toda España.