Casa prefabricada Asturias es una construcción inspirada en el estilo mas tradicional, con fachada de hormigón, como todas nuestras casas prefabricadas de alta calidad.
Éste modelo de casa prefabricadas, está construida en Asturias, el destino soñado para miles de personas por sus hermosos paisajes.
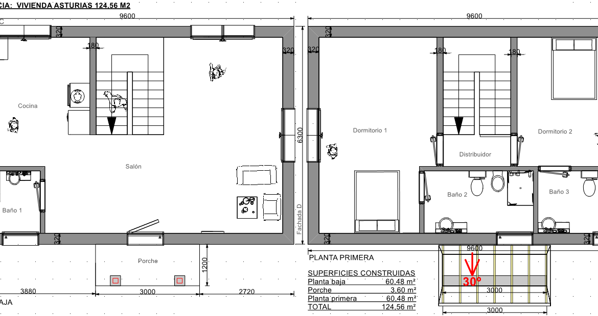
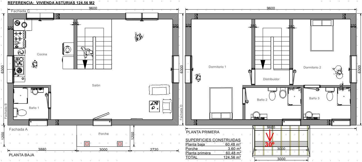
Esta casa prefabricada Asturias prediseñada a medida, tiene la distribución de una de nuestras casas prefabricadas.
La cubierta inclinada de esta casa prefabricada modelo Asturias, aporta al edificio calor en invierno y frescor en verano.
La casa prefabricada modelo Asturias es una vivienda ideal para entornos rurales, aunque también es compatible en ambientes urbanos.
En la planta baja un salón muy grande, una cocina y un baño.
En la planta alta esta construido por dos dormitorios tipo suite con sus baños integrados.
Y como en todas nuestras casas prefabricadas de alta calidad, podrás elegir la distribución que prefieras para que la sientas un poco más tuya.
En esta opción, entregamos la casa prefabricada Asturias con aislamientos ideales para casas pasivas prefabricadas o edificios de consumo casi nulo (nZEB).
Casa prefabricada con la teja puesta, acabado final en fachadas de hormigón con sistema SATE y revestimiento en cemento coloreado. Carpintería exterior de PVC de alta calidad para casas prefabricadas pasivas. Cerramientos en OSB y revestimientos interiores en PYL panel yeso laminado que reduce las fuerzas sísmicas de la casa prefabricada y aumenta la protección frente al fuego.


Visite nuestra pagina Facebook Construcción de Viviendas VME No te pierdes nuestras fotos de casas prefabricadas en Asturias en construcción.