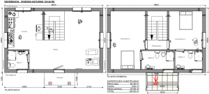
Casa Asturias 124,56, planos

  • hace 3 años
  • 0

Únete a la discusión

Comparar listados

Comparar