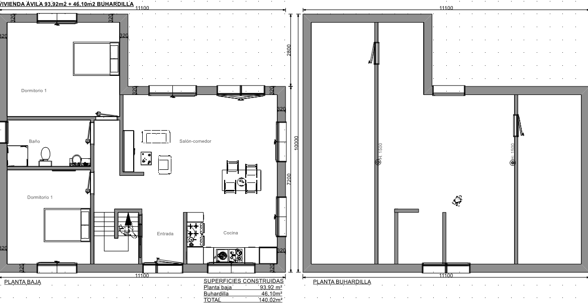
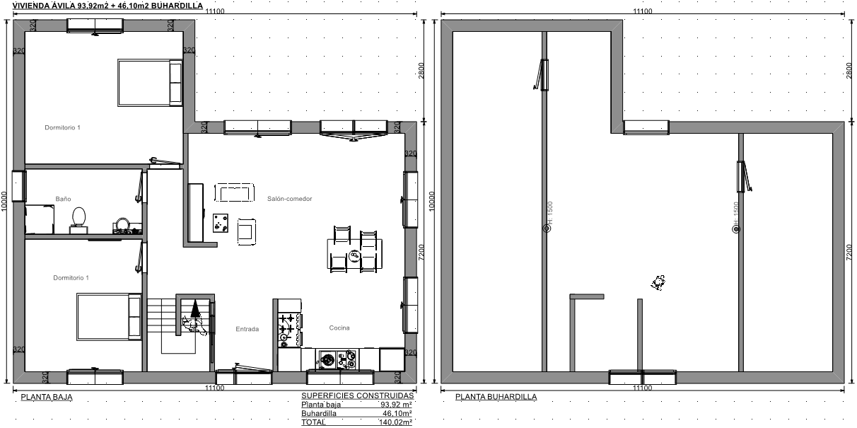
Casa prefabricada Ávila es una vivienda acabada en hormigón de 2 dormitorios y 1 baño y una amplia buhardilla que se pueden utilizar para diversos fines, como dormitorio ó estudio.
Vivienda prefabricada de alta calidad a buen precio, ideal para entornos tanto rurales, como urbanos.
Esta vivienda se pueden adaptar según las necesidades y gustos del propietario, que pueden ser de diferentes tipos de tejados a dos aguas, a cuatro aguas, planos, etc.
Entra a nuestro catálogo digital de casas prefabricadas y encuentra lo que necesitas.
Aquí podrás encontrar modelos de casas pasivas, chalets y Viviendas prefabricadas modernas de Alta Calidad, acabadas en hormigón.


Construcción de Viviendas VME en facebook, ver más fotos de casas prefabricadas de estilo tradicional ó modernas.
Para más información respecto a la calidad, consulte nuestra Sistema Constructivo VME.
Por favor ingrese su nombre de usuario o dirección de correo electrónico. Recibirá un enlace para crear una nueva contraseña por correo electrónico.
