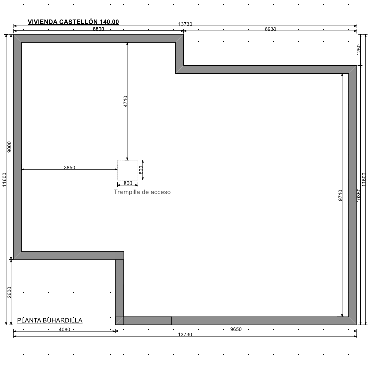
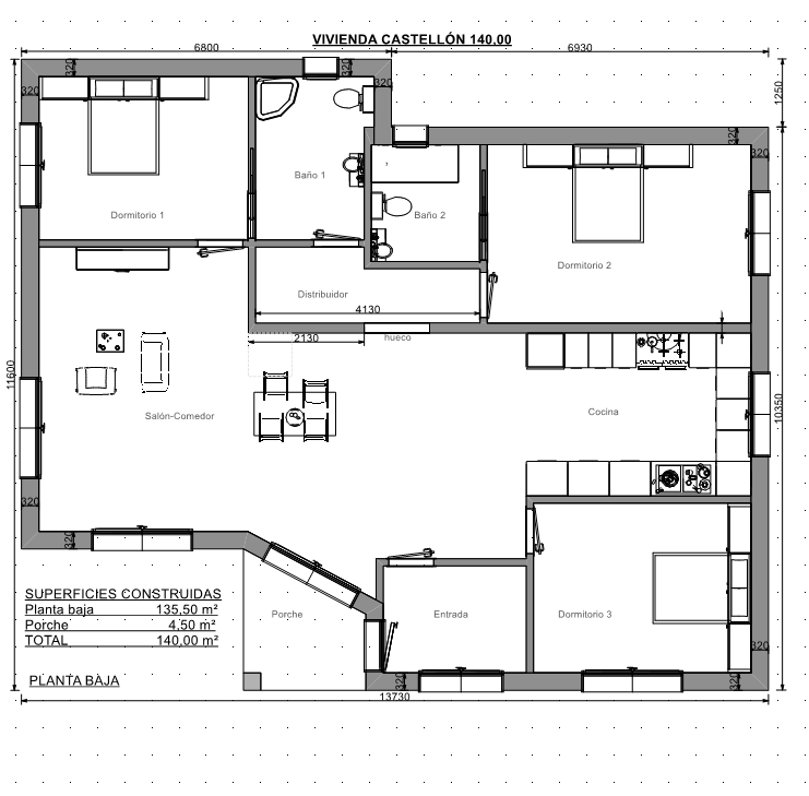
Casa prefabricada Castellón 140 m2 de Alta Calidad – Precio desde 158.424 €
Somos un equipo de profesionales con más de 20 años de experiencia en la industria de la construcción de viviendas prefabricadas de alta calidad tanto en España como en el extranjero.
Con tu Vivienda prefabricada VME reducirás tu consumo energético, asegurando un control climático y confort en todo momento.
Son casas prefabricadas de alta calidad eficientes desde el punto de vista energético, respetuosas con su hábitat natural y generadoras de un ambiente saludable.
Descubre los precios especiales de nuestras viviendas unifamiliares aisladas en oferta.
Ahorro mínimo de 30% en el precio de mercado con Viviendas VME.
¡Hablemos de tu proyecto!
La construcción de viviendas sostenibles forma parte de la evolución del mercado de la construcción civil.
Las empresas constructoras deben formar a los profesionales para este nuevo enfoque y actualizar los desarrollos de acuerdo con la legislación del sector.
El cambio climático y las exigencias de los nuevos consumidores obligan a las empresas constructoras a aplicar nuevas políticas en sus proyectos.


VME en Facebook Construcción de Viviendas VME para ver más chalets y casas prefabricadas de 120m2, 100m2, 130m2, 140m2, 150m,2, 200m2 en Castellón, Valencia, Madrid, Barcelona y toda España.