Casa Prefabricada Cubica modelo Valencia 164,04 m2 construidos con 3 dormitorios.
Casa Prefabricada Cubica moderna de construcción sostenible con fachada de hormigón blanco.
Viviendas prefabricadas de alta calidad Cumple con el estándar de Casa Pasiva.
El diseño de la Casa Prefabricada Cubica moderna va más allá de la funcionalidad y el confort, también busca transmitir una estética vanguardista y un sentido de estilo único.
Descubra nuestros precios y ofertas de casas prefabricadas modernas de alta calidad, solicita presupuesto sin compromiso.
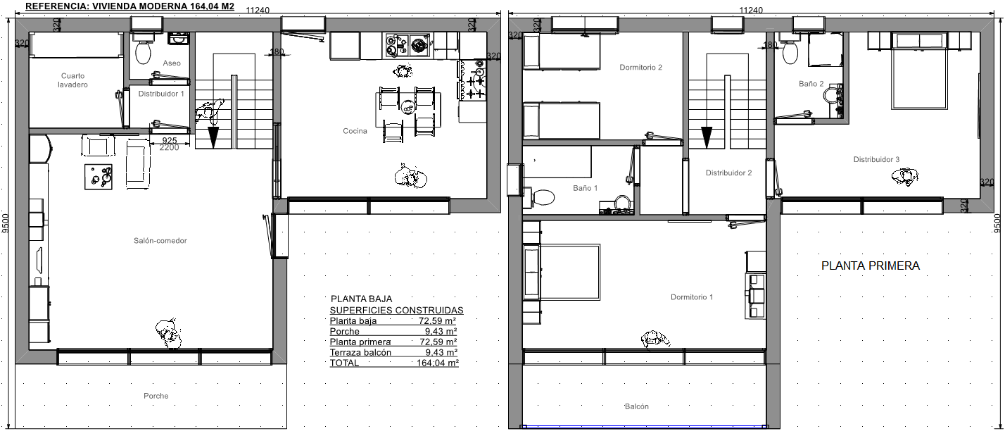
Distribución Casa Prefabricada Cubica moderna modelo Valencia 164,04 m2.
Planta baja:
Salón comedor, cocina, cuarto lavadero, vestíbulo, aseo y porche.
Planta primera:
Un dormitorio tipo suite con baño, un baño general, dos dormitorios, un balcón cubierto.


VME en Facebook Construcción de Viviendas VME para ver más casas prefabricadas modernas pasivas en construcción.
Por favor ingrese su nombre de usuario o dirección de correo electrónico. Recibirá un enlace para crear una nueva contraseña por correo electrónico.
