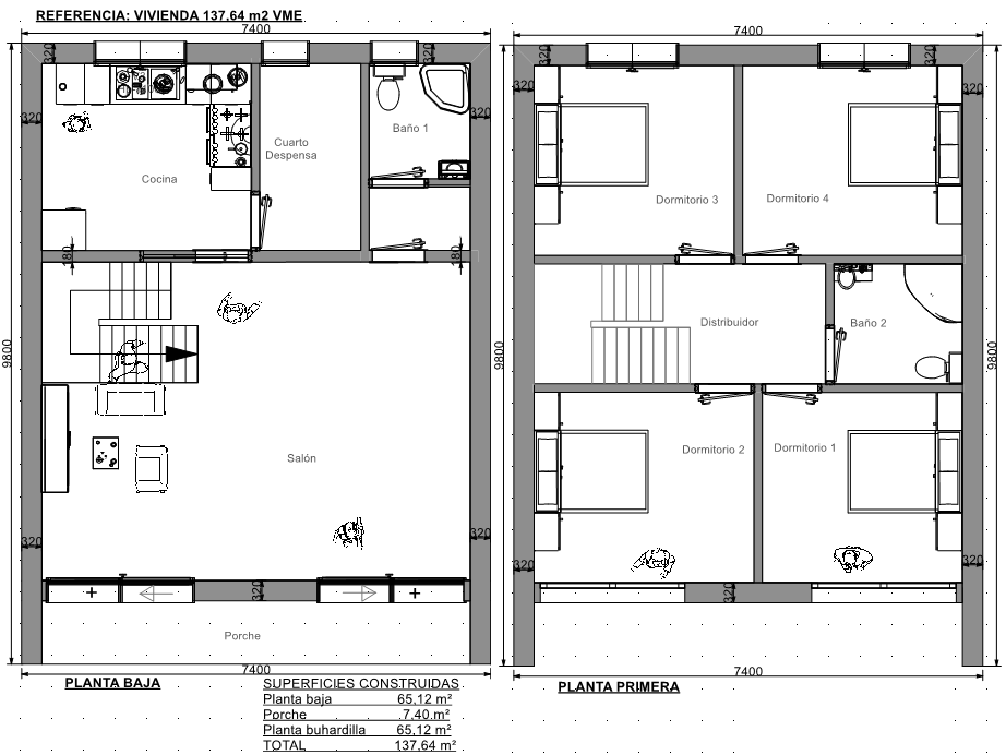
Solicita precio de construcción de esta vivienda modelo Oviedo 137,64m2 con fachada de hormigón.
Constructora de Viviendas VME viene sirviendo a los clientes en España desde hace más de 20 años, con varias cientos de obras realizadas.
Casas prefabricadas de estilo nórdico o escandinavo, las grandes ventanales y la sencillez es la clave de su éxito.
No hay casa prefabricada de diseño nórdico que represente el estilo escandinavo que no persiga atrapar la luz natural.
En Viviendas VME nos enfocaremos en la rama de las viviendas prefabricadas modernas de alta calidad, aquellas que siguen los lineamientos y principales características de esta corriente arquitectonica.
Nuestros arquitectos colaboradores pueden desarrollar un proyecto perfectamente adaptado a sus gustos y necesidades, o podemos producir y ejecutar un proyecto a medida.
Todos nuestras casas y chalets prefabricados se pueden ajustar a tus necesidades específicas, lo que te permitirá participar activamente en el diseño de tu propia casa.
Cuéntanos tu sueño, nosotros lo construimos.


VME en Facebook Construcción de Viviendas VME para ver más casas prefabricadas en Oviedo Asturias y toda España.