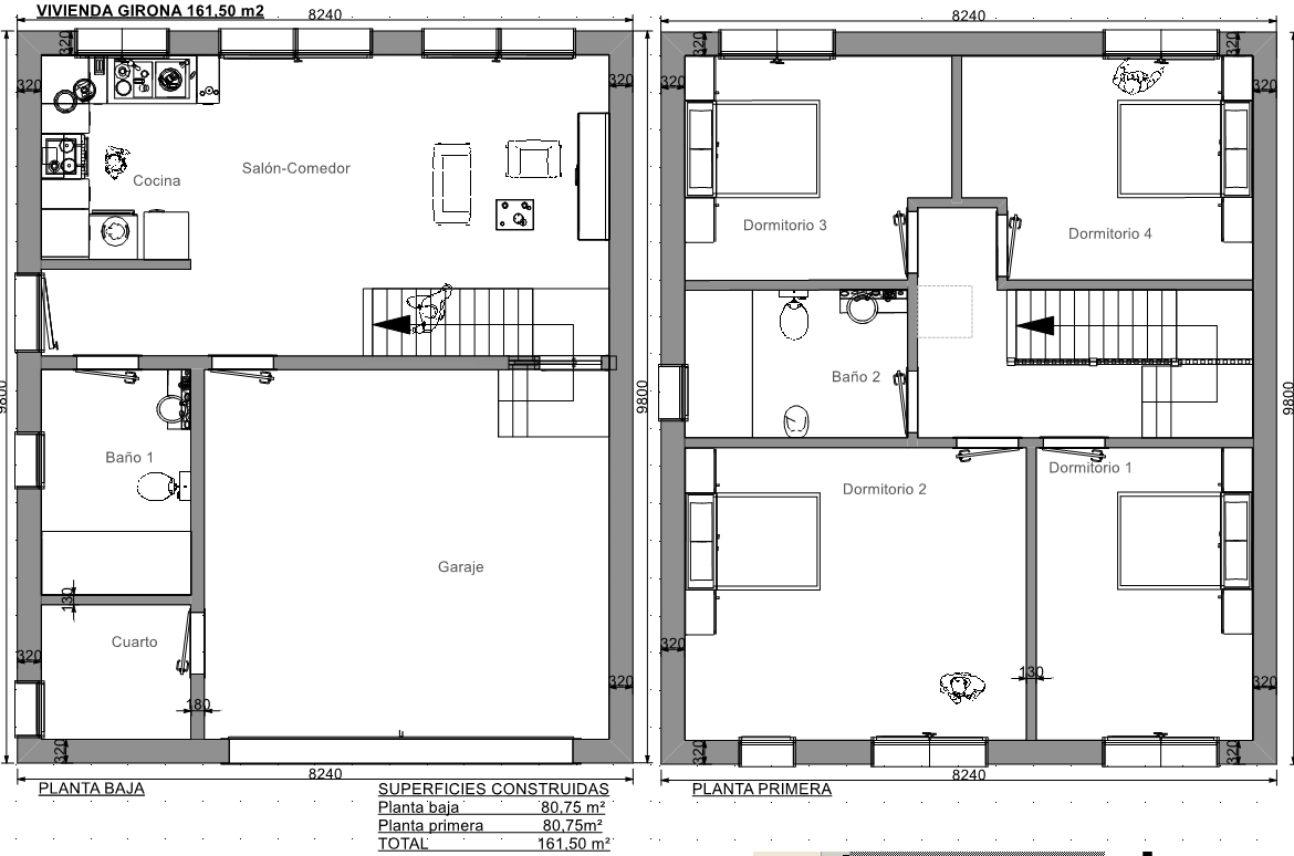
Casa prefabricada Girona acabada en hormigón construida en 2019, con 4 dormitorios y garaje cuenta con superficies de 161,50m2 construidos.
Como una característica a destacar debido a dos cosas, una no es una casa clasica con techo a dos aguas, tiene un estilo arquitectónico particular manteniendo cierta simetría pero le da un estilo muy moderno
El estilo que un techo inclinado le da a una construcción prefabricada es muy llamativo, ya que tiene su deber principalmente evitar acumulación de agua, nieve o basura.
Constructora de casas prefabricadas pasivas de alta Calidad:
Los techos inclinados en una vivienda prefabricada permiten que la nieve y el agua se deslicen más fácilmente, esto reduce las necesidades de limpiar y dar mantenimiento.
Gracias a esta inclinación de la cubierta y a la buhardilla que forma, ayuda a disminuir el impacto de la temperatura dentro de la vivienda o construcción prefabricada.
Una vivienda prefabricada con buhardilla ayuda reducir los niveles de consumo de energía eléctrica.


Construcción de Viviendas VME en facebook, ver más fotos de casas prefabricadas con cubiertas inclinadas ó con techo plano moderno.
Para más información respecto a la calidad, consulte nuestra Sistema Constructivo VME.
Por favor ingrese su nombre de usuario o dirección de correo electrónico. Recibirá un enlace para crear una nueva contraseña por correo electrónico.
