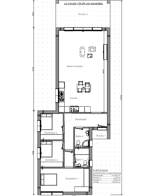
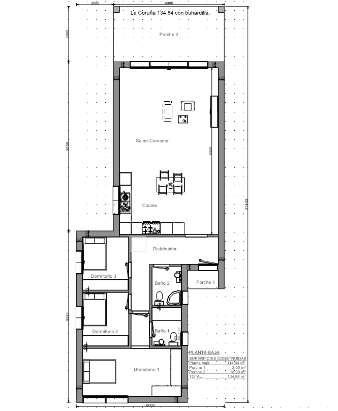
Casa prefabricada La Coruña 134 m2, acabada en hormigón, con 3 dormitorios, 2 baños, salón, cocina y porche.
Esta bella casa moderna prefabricada es el tipo de diseño que se tiene en el subconsciente al soñar con una casa en planta baja…
El más claro ejemplo de adaptación del diseño de la casa prefabricada a la parcela.
Esta es una vivienda prefabricada de alta calidad con un gran desarrollo en planta baja, donde las vistas frontales, los grandes ventanales y la funcionalidad en la funcionalidad en la distribución son una prioridad.
En cuanto al interior de la vivienda prefabricada, se puede apreciar cómo el salón y la cocina son absolutamente protagonistas sociales a través de el concepto abierto.
El área social está integrado todas para dar un mayor alcance a los espacios, dejando sólo las tres dormitorios de la parte reservada del proyecto.
Se trata de una vivienda prefabricada diseñada con un estilo moderno actual contemporáneo para satisfacer todas las necesidades de los clientes.
El porche de la casa prefabricada se plantea como una continuación de la vivienda, creando un espacio de vida interior-exterior muy agradable.


Visite nuestra pagina Facebook Construcción de Viviendas VME para ver más casas prefabricadas de alta calidad en La Coruña, Valencia, Madrid, Barcelona y toda España.