Casa prefabricada Madrid 115m2 construidos.
Es una construcción en una sola planta con cubierta de varias aguas y fachada de hormigón.
Los envolventes de todas las fachadas de nuestras casas prefabricadas, son de hormigón y aisladas en sistema SATE.
El mejor sistema para eliminar puentes térmicos de las casas prefabricadas y tradicionales, acabado en mortero decorativo Según UNE-EN 998-1.
Esta casa prefabricada, ofrecen una combinación única de resistencia, durabilidad, versatilidad y eficiencia energética.
Su proceso de construcción y su capacidad para proporcionar aislamiento térmico y acústico la convierte en una opción atractiva.
Una vivienda prefabricada de alta calidad construida a medida, pensada desde la implantación en la parcela y las necesidades del cliente.
Modelo de casa prefabricada perfecto para clientes que buscan un espacio cómodo en planta baja, sin renunciar a las mejores prestaciones en el hogar.
Un casa prefabricada que combinan características funcionales y estéticas en la construcción de edificios.
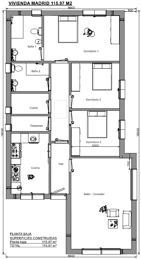
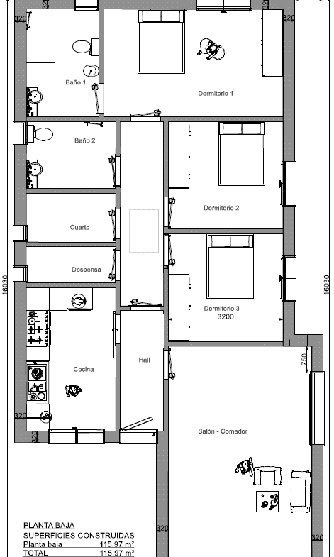
La casa prefabricada modelo Madrid 115,97, esta diseñada de forma sectorial, para garantizar la armonía, de toda la familia en su interior
Con una distribución formada por salón-comedor, cocina, cuarto y despensa, dormitorio principal con baño, dos dormitorios secundarios y baño general.
Si fuera necesario, podemos modificar la distribución interior y tipo de cubierta, fachada, acabados, la carpintería de esta casa prefabricadas a su gusto.
Si necesitas un proyecto personalizado, contacta con nosotros y un técnico comercial te ayudará en todo el proceso para realizar tu proyecto.
Construimos casas modernas prefabricadas con carácter. Cada modelo de casa prefabricada se puede personalizar según sus expectativas.


VME en Facebook Construcción de Viviendas VME para ver más casas prefabricadas en Madrid de alta calidad y toda España.