Casa prefabricada moderna Barcelona 92,19 m2 de 2 dormitorios.
Una casa moderna prefabricada de alta calidad, con materiales como hormigón y acero ó madera, totalmente personalizable a tu gusto.
Es un modelo de casa prefabricada de estilo moderno, perfecto para clientes que buscan un diseño original en planta baja y planta primera.
Constructora VME de Viviendas Modernas de Alta Calidad en su propio terreno con una amplia gama de presupuestos.
Cuando no se dispone de un amplio terreno, se pueden construir casas de alta calidad como la que presentamos aquí.
El diseño de esta espectacular casa prefabricada de estilo modular moderna, se adapta a la perfección a parcelas de corte estrecho y alargado.
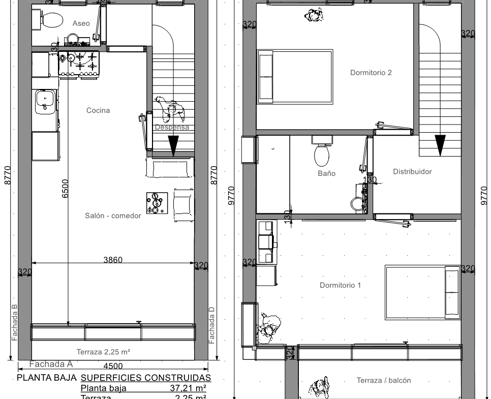
Planta baja, un salón comedor, cocina, aseo, y porche. Gracias al diseño de esta casa moderna cúbica, el saliente es aprovechado una vez más como porche.
En la planta alta, un distribuidor, dos dormitorios, un baño y una terraza cubierta.
En esta opción, entregamos la casa prefabricada moderna con aislamientos ideales para casas pasivas prefabricadas o edificios de consumo casi nulo (nZEB).
Entregamos la vivienda moderna prefabricada con la teja puesta, acabado final en fachadas de hormigón con sistema SATE y revestimiento en cemento coloreado.
Carpintería exterior de PVC de la vivienda moderna prefabricada, de alta calidad para casas prefabricadas pasivas.
Cerramientos completos de esta casa moderna prefabricada exteriores, interiores que reduce las fuerzas sísmicas de la casa prefabricada y aumenta la protección frente al fuego.


VME en Facebook Construcción de Viviendas VME para ver más casas prefabricadas en Valencia y toda España.