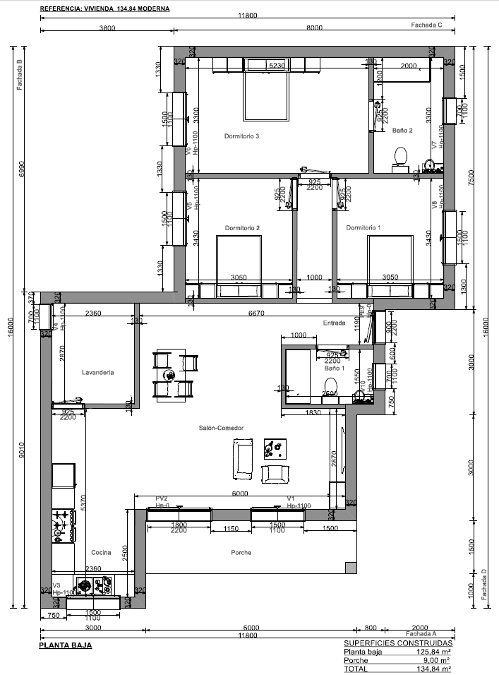
Casa prefabricada moderna modelo Murcia 134m2 acabada en hormigón. Precio desde 135.615 euros.
Esta casa prefabricada moderna Murcia cuentan con 3 dormitorios, 2 baños, salón comedor, cocina, lavadero, aunque se ofrecen opciones de personalización.
Si te han gustado esta casa moderna de lujo y estás pensando en adquirir una, rellena el siguiente formulario.
Cuéntanos en qué estas pensando y el equipo de VME te guiará y acompañará hasta hacerlo realidad.
Nos ponemos de inmediato con ello y en un plazo de 24 horas contactaremos contigo por email, para darte respuesta.
La madera en la construcción de la casa prefabricada Murcia pasivas prefabricadas modernas:
Los beneficios de un material natural en construcción de viviendas unifamiliares aisladas.
La madera tiene diversos beneficios para la salud, entre otras cosas, por su capacidad natural de regular la humedad,
Por sus características naturales, la madera ofrece una baja transmitancia térmica, lo que hace que los elementos estructurales colaboraren con los aislamientos en conseguir muros exteriores de alta eficiencia energética.
Si necesitas asesoramiento sobre tu proyecto escríbenos y nos pondremos en contacto contigo.
La amplitud de las zonas comunes hacen del modelo Murcia una vivienda prefabricada moderna de alta calidad en la que apetece vivir.
Una vivienda moderna práctica y funcional que no renuncia a la estética y al disfrute de los espacios.


VME en Facebook Construcción de Viviendas VME para ver más casas prefabricadas modernas pasivas en Barcelona.