Precio desde 200.338 Euros.
Esta casa prefabricada moderna destaca por su diseño y su amplitud, construcción de la fachada acabada en hormigón coloreado.
Es una casa prefabricada moderna de techos altos minimalista de alta calidad autosuficiente y ecológicamente amigables en su construcción.
Con fachada de hormigón, grandes puertas y ventanas passivhaus le otorgan modernidad y a la vez el toque acogedor que todo hogar necesita.
Un estilo de casa prefabricada moderna más contemporáneo muestra esta otra vivienda en la que sobresale un volumen en el que queda enmarcado un espectacular balcón.
El saliente es aprovechado una vez más como porche.
Se trata de una casa de diseño moderno, de estilo mediterráneo minimalista actual.
Con un elegante diseño de tipo minimalista, los volúmenes de cada planta conforman un conjunto muy compacto.
Confort y eficiencia energética. Cumple con el estándar de Casa Pasiva
Para nosotros que una casa tenga un “diseño acorde con el tiempo actual y sea avanzada en sus características” significa que se ha diseñado con un sistema constructivo eficaz, sostenible y que sea eficiente energéticamente
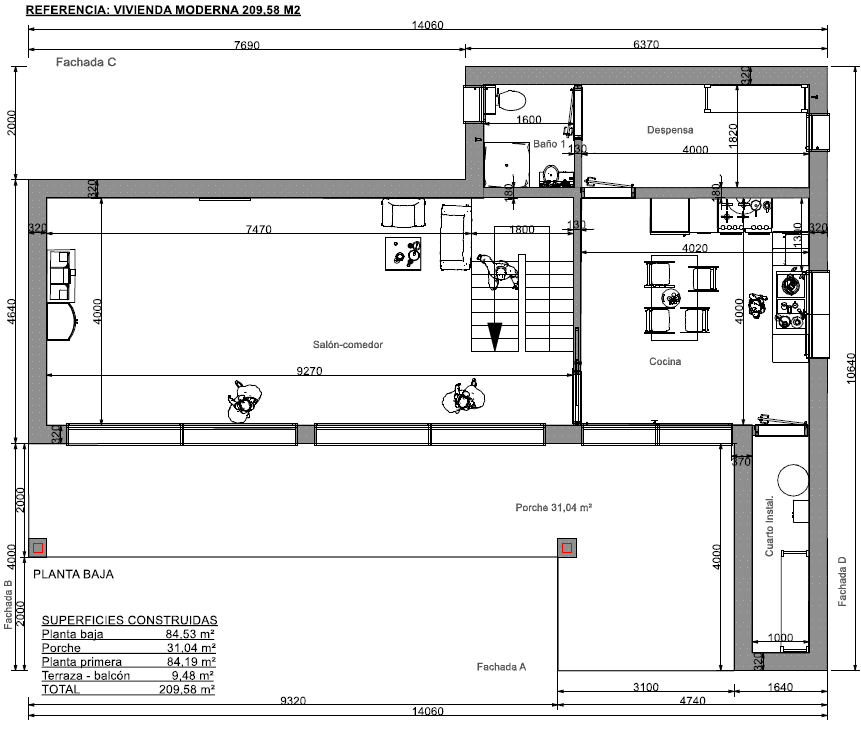
La planta baja esta casa prefabricada moderna se compone de, salón comedor amplio, cocina, despensa, cuarto de instalaciones, un baño y un porche moderno.
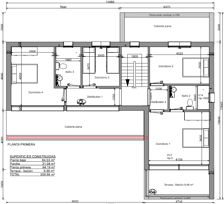
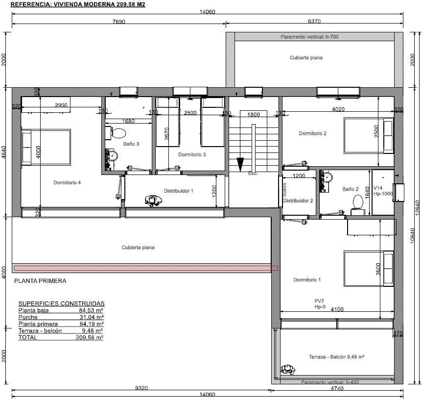
En el segundo piso está dedicado a la privacidad de la familia con cuatro dormitorios, 2 baños, terraza balcón.
Existe la posibilidad de modificaciones a petición del cliente para añadir plazas de garaje o modificar la distribución interior.
En esta opción, entregamos la casa prefabricada moderna con aislamientos ideales para casas pasivas prefabricadas o edificios de consumo casi nulo (nZEB).
Casa prefabricada moderna con acabado final de la cubierta y fachadas de hormigón, aisladas con sistema SATE con revestimiento en mortero de cemento coloreado.
Carpintería exterior de PVC de alta calidad para Casa Prefabricada Moderna pasiva.
Cerramientos en OSB y revestimientos interiores modernos en PYL panel yeso laminado que reduce las fuerzas sísmicas y aumenta la protección frente al fuego.
La corriente de diseño actual ha dejado atrás los frisos de madera, para basarse en lo minimalista. Colores neutros dominan cada vez más el diseño exterior e interior de las casas modernas prefabricadas de alta calidad.
Construimos casas modernas prefabricadas con carácter. Cada modelo de casa prefabricada se puede personalizar según sus expectativas.


Construcción de Viviendas VME en facebook, ver más fotos de viviendas prefabricadas modernas en construcción en toda España.