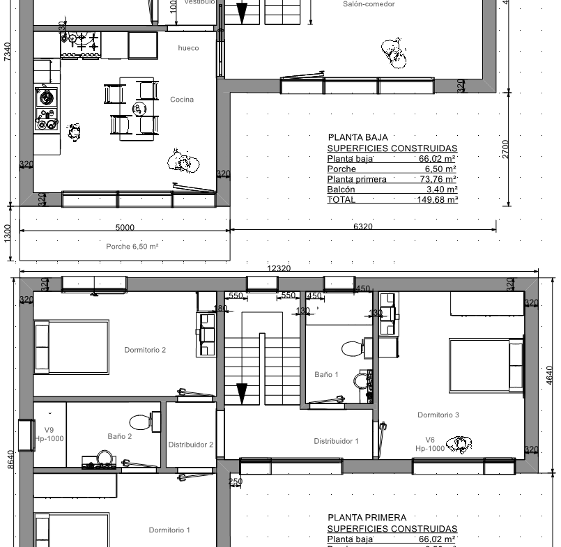
Casas prefabricada Salamanca 149,68m2 Precio 149.592 euros.
Casa moderna prefabricada diseñada mediante volúmenes cúbicos y minimalistas de estilo moderno, cuenta con dos plantas.
En esta opción, entregamos la casa prefabricada con aislamientos ideales para casas pasivas prefabricadas o edificios de consumo casi nulo (nZEB).
Casa prefabricada con la teja puesta, acabado final en fachadas de hormigón con sistema SATE y revestimiento en cemento coloreado.
Carpintería exterior de PVC de alta calidad para casas prefabricadas pasivas.
Cerramientos completos de la casa prefabricada exteriores, interiores que reduce las fuerzas sísmicas de la casa prefabricada y aumenta la protección frente al fuego.


VME en Facebook Construcción de Viviendas VME para ver más casas prefabricadas modernas pasivas en construcción ó ya finalizadas en Salamanca y toda España.
Por favor ingrese su nombre de usuario o dirección de correo electrónico. Recibirá un enlace para crear una nueva contraseña por correo electrónico.
