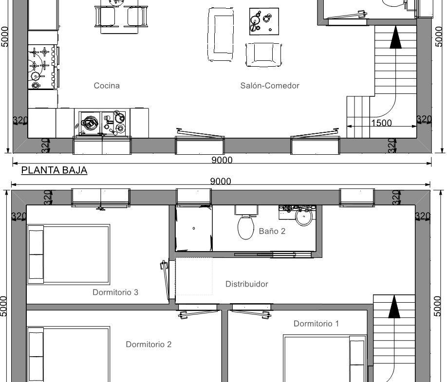
Casa prefabricada Segovia cuenta con superficies de 90m2 construidos.
La fachada de hormigón está revestida de un mortero monocapa de color blanco.
La baja de la vivienda prefabricada está destinada las zonas comunes vivideras en las que se sitúan el salón comedor, la cocina, y un baño.
En la planta superior de la vivienda prefabricada Segovia 90m2 se desarrolla un programa de tres dormitorios con un baño con la cubierta inclinada.
Y como en todas nuestras casas prefabricadas, podrás elegir la distribución que prefieras para que la sientas un poco más tuya.


Construcción de Viviendas VME en facebook, ver más fotos de casas prefabricadas de estilo tradicional ó modernas.
Para más información respecto a la calidad, consulte nuestra Sistema Constructivo VME.
Por favor ingrese su nombre de usuario o dirección de correo electrónico. Recibirá un enlace para crear una nueva contraseña por correo electrónico.
