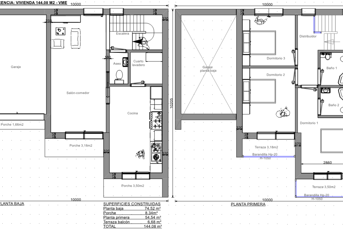
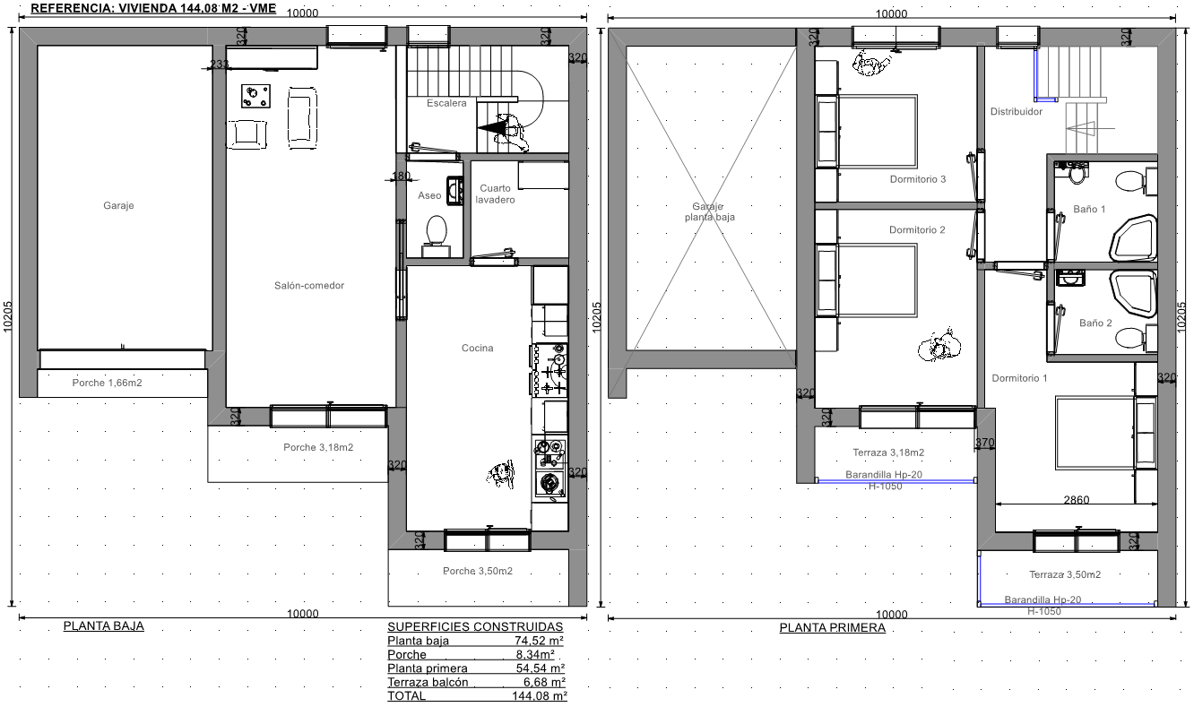
Casa prefabricada Sevilla Precio desde 139.890€ – Modelo 144,08m2.
Se trata de una casa prefabricada de alta calidad en dos plantas con tres dormitorios, garaje, salón, cocina, despensa, dos baños, aseo, tres porches y dos terrazas.
El principal objetivo que nos planteamos es que la casa prefabricada sea acogedora.
La idea es que nos sintamos a gusto en ella, que todo quede bien organizado como para que accedamos a cada estancia de manera funcional.
La luz natural de la vivienda prefabricada modelo Sevilla 144m2 es otro de los aspectos a valorar.
Permite el ahorro energético, un casa prefabricada amplia y luminosa hace que cada estancia sea más acogedora y que la casa sea sostenible.
Las casas prefabricadas VME son personalizables, tanto en materiales como en estructura.
Compra tu casa prefabricada de alta calidad a medida de forma organizada y honesta.
El tiempo que tardamos en crear tu hogar a medida se habrá firmado en el contrato. Suele tardar de 5 a 6 meses.


VME en Facebook Construcción de Viviendas VME para ver modelos de casas prefabricadas de hormigón en Sevilla y toda España.