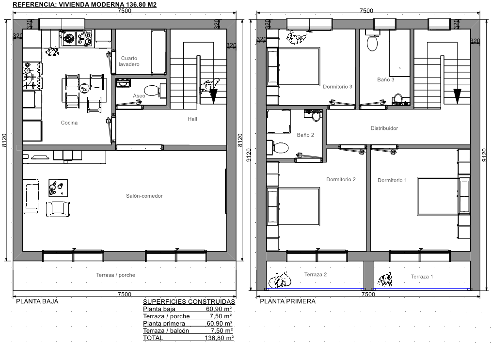
Casa Prefabricada Sevilla de 136,80m2 construidos con 3 dormitorios y 3 baños a un precio asequible.
Casa prefabricada Sevilla de diseño moderno, se puede ampliar o reducir según las necesidades que se deseen cubrir.
El modelo de casa prefabricada Sevilla 136,80, dispone de 3 dormitorios y 2 baños, 1 aseo, salón, cocina, cuarto lavadero, 1 porche y dos terrazas.
Esta casa prefabricada Sevilla está pensada para personas que buscan un aspecto diferenciador moderno e innovador.
Este modelo de casa prefabricada Sevilla destaca por sus techos altos y su diseño moderno y llamativo, otorgando un aire acogedor.
Anteproyecto estructural de la vivienda prefabricada le sale gratis.
Si desea más información, fotos y planos en 3D de las casas prefabricadas VME, contáctenos para recibir más información. Descubre nuestras construcciones prefabricadas tipo chalets ó viviendas modernas pasivas de alta calidad.


Visite nuestra pagina Facebook Construcción de Viviendas VME No te pierdes nuestras novedades, fotos y modelos de casas prefabricadas en Seviila en proceso de construcción. Dale al «Me Gusta y Comparte»
Por favor ingrese su nombre de usuario o dirección de correo electrónico. Recibirá un enlace para crear una nueva contraseña por correo electrónico.
