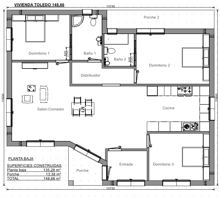
Casa prefabricada Toledo 148m2 Precio desde 163.774 euros
Empresa española Viviendas VME con base en Valencia tiene más de 20 años de experiencia en la construcción industrializada.
Constructora casas prefabricadas sostenibles VME lleva a sus espaldas unas 460 casas prefabricadas de alta calidad que se caracterizan por un diseño eficiente y vanguardista.
Construimos viviendas prefabricadas pasivas, siempre con los mejores materiales.
Tanto los precios como los plazos son cerrados (se entregan en 3-5 meses), además, cada vivienda prefabricada es personalizable y exclusiva en cuanto a los materiales de acabados, suelos, pintura, alicatados, etc.
La utilización de materiales ecológicos es otra de las características de las casas prefabricadas pasivas VME.
En todas estas viviendas prefabricadas predominan las grandes ventanas o puertas de cristal en las fachadas que permiten la entrada de luz solar.


VME en Facebook Construcción de Viviendas VME para ver más chalets y casas prefabricadas de 120m2, 100m2, 130m2, 140m2, 150m,2, 200m2 en Toledo, Valencia, Madrid, Barcelona y toda España.
Por favor ingrese su nombre de usuario o dirección de correo electrónico. Recibirá un enlace para crear una nueva contraseña por correo electrónico.
