Precio desde 114.222 euros.
Esta casa prefabricada con fachada de hormigón fue construida en Valdemorillo, Madrid en año 2020.
La construcción de viviendas prefabricadas VME ofrecen una excelente relación calidad-precio. Elige garantía de pagos y experiencia en construcción de casas prefabricadas de alta calidad.
Es importante destacar que las casas prefabricadas VME ofrecen un excelente aislamiento térmico.
Esto reduce la cantidad de energía que se necesita para calentar o enfriar la casa, lo que ahorra dinero en el largo plazo.
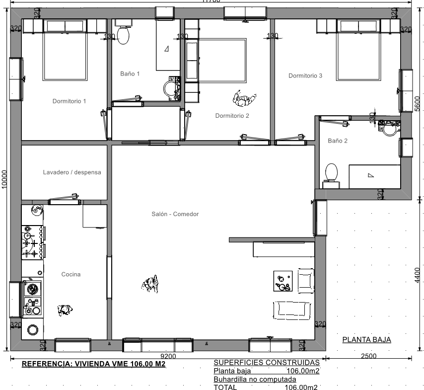
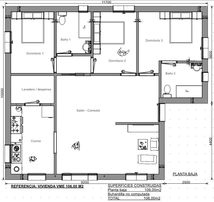
Casa Prefabricada Madrid 106m2 – Valor de reventa
La mejor manera de comprobar la relación Calidad-Precios de las casas prefabricadas VME es visitar algunas de nuestras viviendas construidas ó en proceso de construcción.
La construcción de viviendas prefabricadas modernas pasivas en Valencia es una excelente opción para aquellos que buscan una forma asequible y rápida de construir una vivienda.
Estas casas ofrecen la posibilidad de personalizar los diseños para satisfacer los requisitos de los propietarios, y el proceso
El proceso de construcción de la casa prefabricada comienza con la selección del diseño de la casa por parte del propietario.
La fidelidad de nuestros clientes es nuestra mejor carta de presentación.
Adaptándonos a todos los estilos de casa: Moderno, Clásico y Funcional.
Para más información respecto a la calidad constructiva de esta casa prefabricada, consulte artículos relacionados sobre construcción de Viviendas VME
Encuentra tu casa prefabricada de alta calidad VME


En nuestra pagina de Facebook Construcción de Viviendas VME encontrarás el modelo de casa moderna de tus sueños y de eso no tenemos duda.