Casa Prefabricada Valencia VME Modelo moderna 123m2
Construcción de alta calidad a medida moderna con fachada de hormigón.
Este estilo de vivienda prefabricada incluye espacios amplios y diáfanos, así como el uso de grandes ventanales hacia el exterior.
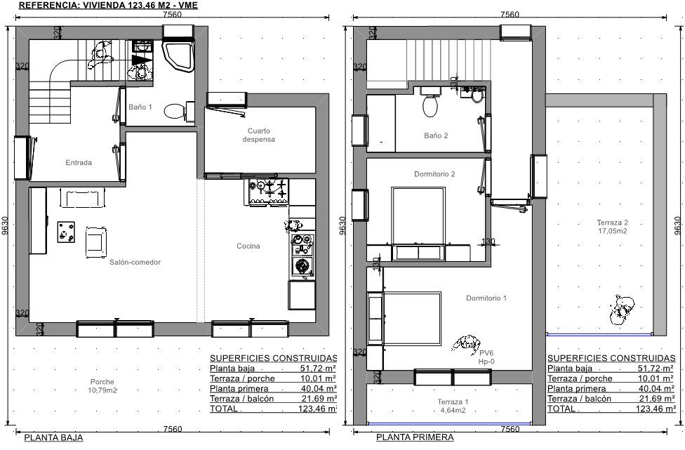
Espectacular vivienda prefabricada que se divide en la zona común: cocina y salón-comedor, despensa, baño, porche y la zona de habitaciones en la planta primera.
Personalizamos cada modelo de vivienda prefabricada adaptándolo a los gustos y necesidades de cada cliente.
Las casas prefabricadas VME han ido ganando popularidad con el paso de los años gracias a su amplia variedad de beneficios y posibilidades.
Estas casas modernas prefabricadas, han ganado popularidad debido a sus diversos beneficios.
Las casas VME destacan por sus originales soluciones arquitectónicas, por su calidad, por los techos altos, y por tener una relación calidad precio correcta.
Construimos casas modernas prefabricadas con carácter. Cada modelo de casa prefabricada se puede personalizar según sus expectativas.


VME en Facebook Construcción de Viviendas VME para ver más casas prefabricadas en Valencia, Madrid y toda España.
Por favor ingrese su nombre de usuario o dirección de correo electrónico. Recibirá un enlace para crear una nueva contraseña por correo electrónico.
