Construida en estilo de construcción tradicional.
La fachada está realizada en hormigón y tambien tiene acabados en mortero monocapa, color a elegir, revestimientos interiores en PYL (panel yeso laminado).
Casa Prefabricada Valencia es una vivienda prefabricada construida con materiales de alta calidad, edificación sismo resistente, cerramientos que reduce las fuerzas sísmicas.
Este estilo de casa prefabricada tipo abuhardillada se centra en crear un entorno cálido y acogedor dentro de la casa.
Las viviendas abuhardilladas tienen un encanto especial y también suponen un reto a la hora de realizar un proyecto.
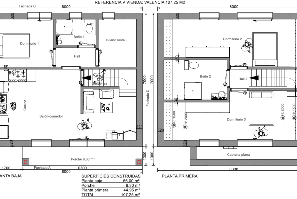
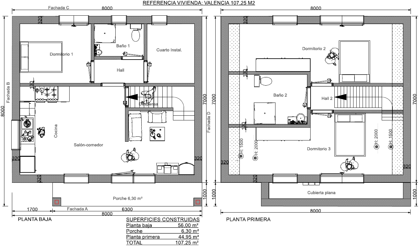
En la planta baja consta de un salón con la cocina creando un único espacio, despensa, cuarto de instalaciones, un dormitorio y un baño.
En la primera planta están dos dormitorios y un baño.
Existe la posibilidad de modificaciones a petición del cliente para añadir o modificar la distribución interior.
En el dormitorio de la fachada A, se puede añadir una puerta exterior y un balcón sobre la terraza de la planta baja.
En esta opción entregamos la vivienda prefabricada modelo Valencia finalizada en el exterior y con revestimiento básico en el interior.
Cada modelo de casa prefabricada con buhardilla se puede personalizar según sus expectativas.
Todos los modelos de casas prefabricadas con buhardilla VME son acabadas con hormigón.


Visite nuestra pagina Facebook Construcción de Viviendas VME Ver modelos y fotos de casas prefabricadas en construcción.