Casa prefabricada Valladolid 144m2 Precio a consultar.
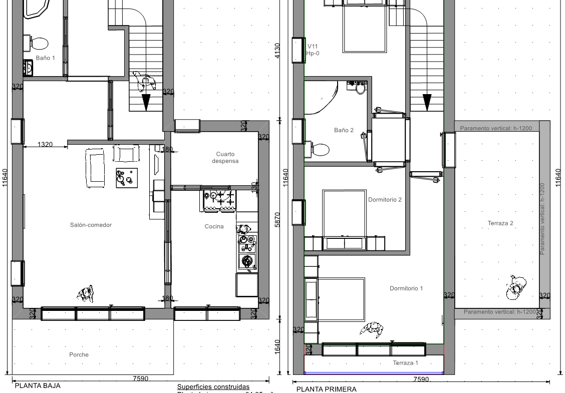
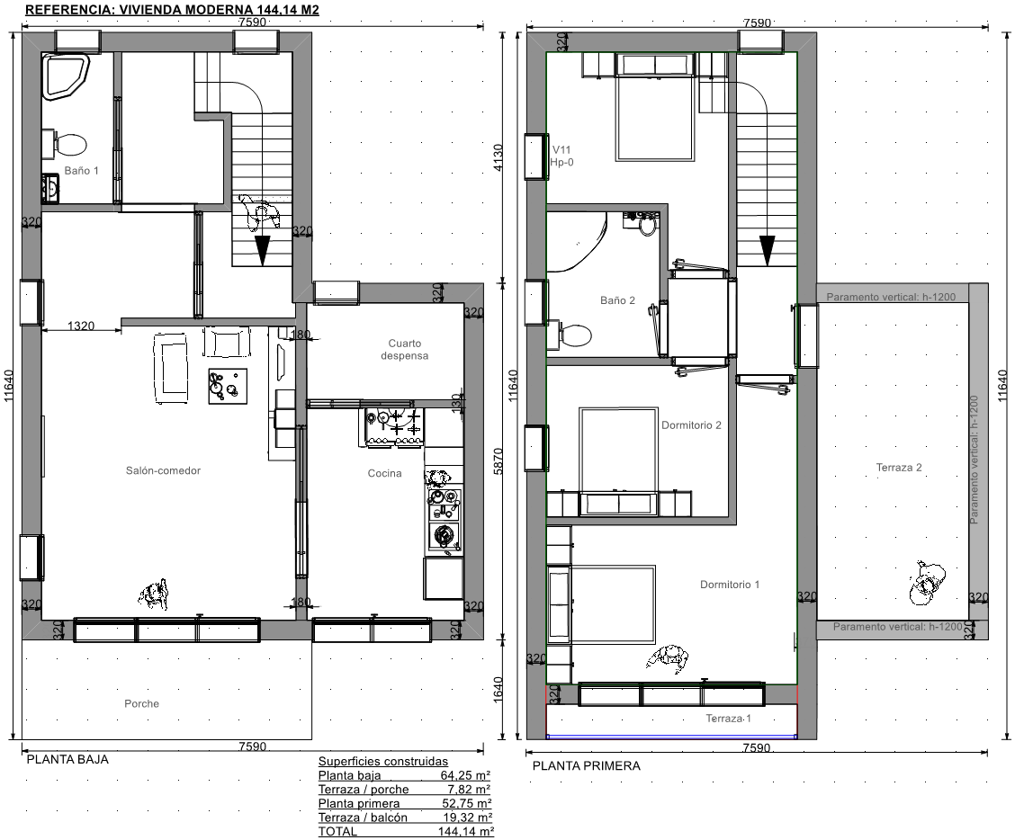
Diseño interior de la vivienda moderna prefabricada es espaciosa y funcional, ofreciendo 3 dormitorios, 2 baños, un amplio salón junto a una cocina moderna con despensa.
El modelo Madrid 144m2 es una vivienda prefabricada que se caracteriza por su robustez y resistencia gracias a su estructura de madera, hormigón y acero.
La vivienda prefabricada industrializada, es una representación magistral de la arquitectura moderna y la eficiencia en la construcción prefabricada.
Las casas prefabricadas VME son una opción económica que se ha convertido en una alternativa ideal para aquellas personas que están pensando en comprar una nueva vivienda de Alta Calidad.
Los diseños entre los que puedes elegir para construir tu casa prefabricada moderna de alta calidad son ampliamente variados.
¿Quieres saber cómo puede ser una casa prefabricada de alta calidad VME por dentro y cuánto puede costar?
Diseñamos y construimos tu casa a medida de alta calidad a un precio razonable y con facilidades de pago.


VME en Facebook Construcción de Viviendas VME para ver más casas prefabricadas modernas pasivas en Valladolid y toda España.
Por favor ingrese su nombre de usuario o dirección de correo electrónico. Recibirá un enlace para crear una nueva contraseña por correo electrónico.
