Construida en Madrid en 2019 y ambientada con un estilo de construcción tradicional muy personal, casa prefabricada con buenas vistas de la montaña, en un entorno muy tranquilo.
Aquí podrás encontrar todos los modelos de casas prefabricadas pasivas VME, chlatets y viviendas cubicas, con estética moderna ó más tradicional, acabadas con hormigón.
En esta opción entregamos la vivienda finalizada en el exterior y con revestimiento básico en el interior: Cubiertas terminadas, Carpinteria exterior pasiva. Muros exteriores doble aisaldos tipo casa pasiva, la envolvente de la fachada exterior con SATE, acabado en hormigón y mortero de cemento coloreado. Revestimientos interiores: paredes y techos con PYL (Panel Yeso Laminado). Instalaciones électricas, sanitarios, fontaneria y TV. Puertas de interior,
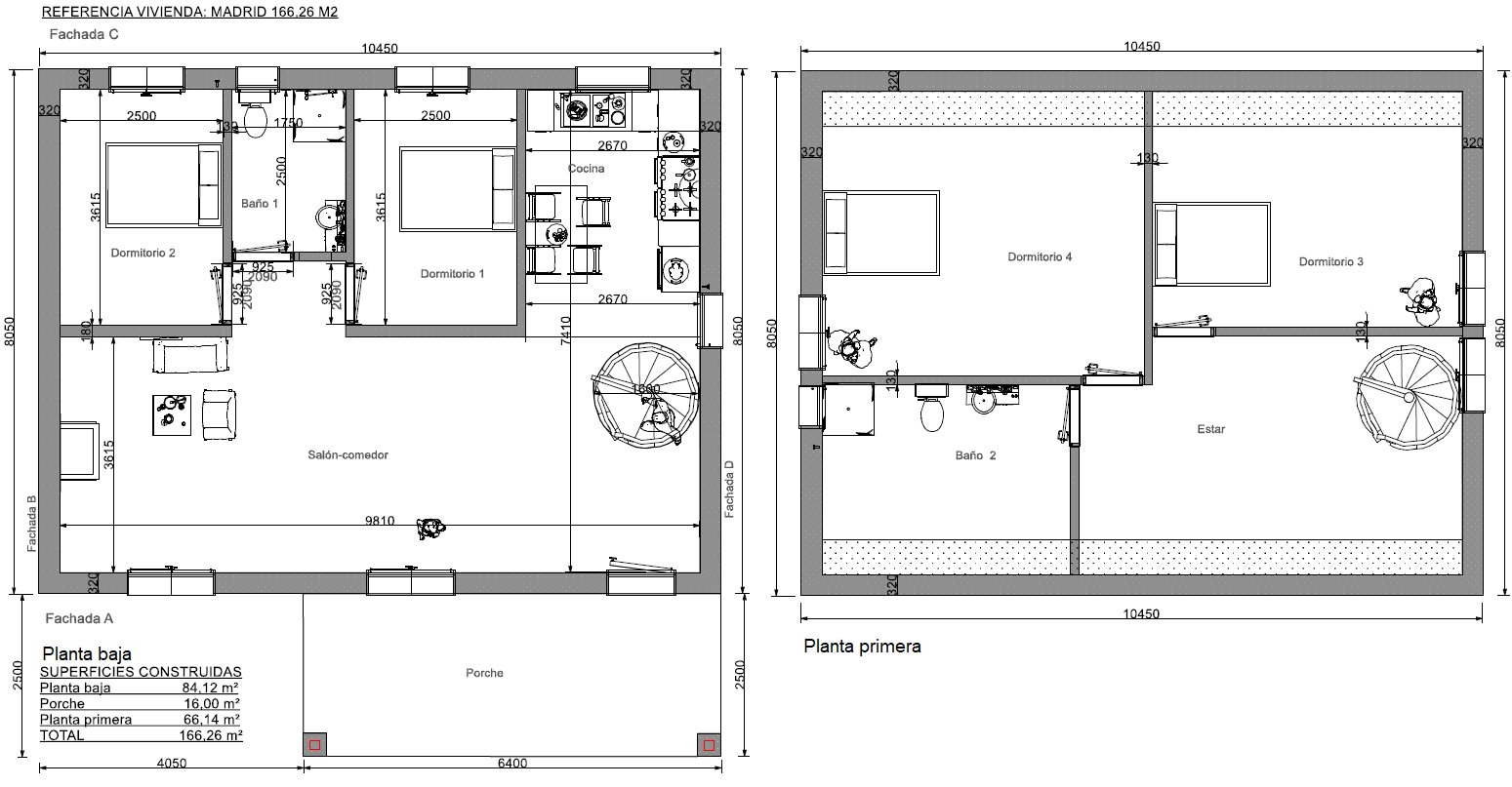
En la planta baja de la casa prefabricada está ubicado el salón, cocina tipo americana, un baño, dos dormitorios y un porche exterior.
La planta primera de la casa prefabricada se compone de dos dormitorios amplios, sala de estar y un baño.
Cada modelo de casa prefabricada se puede personalizar según sus expectativas.
Todos los modelos de casas prefabricadas pasivas VME acabadas con hormigón.


Visite nuestra pagina Facebook Construcción de Viviendas VME Ver modelos y fotos de casas prefabricadas en construcción.