Casas adosadas prefabricadas modernas acabadas en hormigón con 5 dormitorios.
Se trata de un proyecto moderno de dos viviendas de 300 m2 construidos separadas de un muro aislado de 320 mm de espesor.
Edificación VME energéticamente eficiente, cumple con casa pasiva.
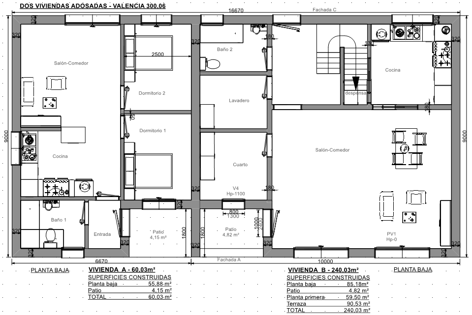
La primera vivienda tiene una superficie construida de 60,03 m2 en planta baja con 2 dormitorios, salón, cocina y un baño.
La entrada principal de las dos viviendas prefabricadas, en su parte delantera, están cubiertas.
La segunda vivienda adosada en 2 plantas tiene una superficie construida de 240,03 m2.
La planta alta de esta casa prefabricada dispone de tres dormitorios con salida al terraza exterior, uno de ellos con baño privado, un vestidor.
Las otras dos habitaciones de esta vivienda tienen un cuarto de baño común.
Aunque compartan una estructura, las entradas a cada vivienda prefabricada de alta calidad son completamente independientes.
Estas 2 casas prefabricadas modernas están diseñadas para aprovechar mejor el espacio, lo que las hace ideales para parcelas urbanas o terrenos compartidos.
Las fachadas con paramentos revocados en hormigón blanco, así como los grandes ventanales, le dan al edificio una sensación de frescura y modernidad.
Las casas pareadas modernas permiten a las familias tener un hogar cómodo sin requerir terrenos demasiado grandes.
Las casas modulares adosadas o entre medianeras, o que también llamamos pareadas, son una forma de ahorrar al momento de construir.


Construcción de Viviendas VME en facebook, ver más fotos de viviendas adosadas prefabricadas de alta calidad en toda España.