Casas con 5 dormitorios, 4 baños, de alta calidad con fachada de hormigón –
Construcción sostenible y duradera de 200 m2 construido con doble aislamiento térmico – Va más allá de la eficiencia energética.
Casa pasiva prefabricada con aislamientos ideales para casas pasivas prefabricadas o edificios de consumo casi nulo (nZEB).
Utilizamos materiales de alta calidad y técnicas de construcción avanzadas para que las estructuras sean resistentes y de larga duración.
Para resolver las grandes luces y para garantizar la durabilidad de la estructura vigas de apoyo de madera laminada GL24h con lo que se sobredimensionan las necesidades que marca la normativa.
Las casas VME prefabricadas pasivas son edificaciones sismo resistente con protección pasiva contra incendios.
Cerramientos y revestimientos estructurales de la casa prefabricada, que reduce las fuerzas sísmicas y aumenta la protección de la estructura frente al fuego.
Superestructura de la casa prefabricada pasiva, tipo losa de cimentación sustentada sobre muros y zapatas corridas de hormigón armado, bajo muros portantes perimetrales.
Gracias a esta estructura aislada y sobredimensionada obtenemos los parámetros de resistencia mecánica, estabilidad, seguridad.
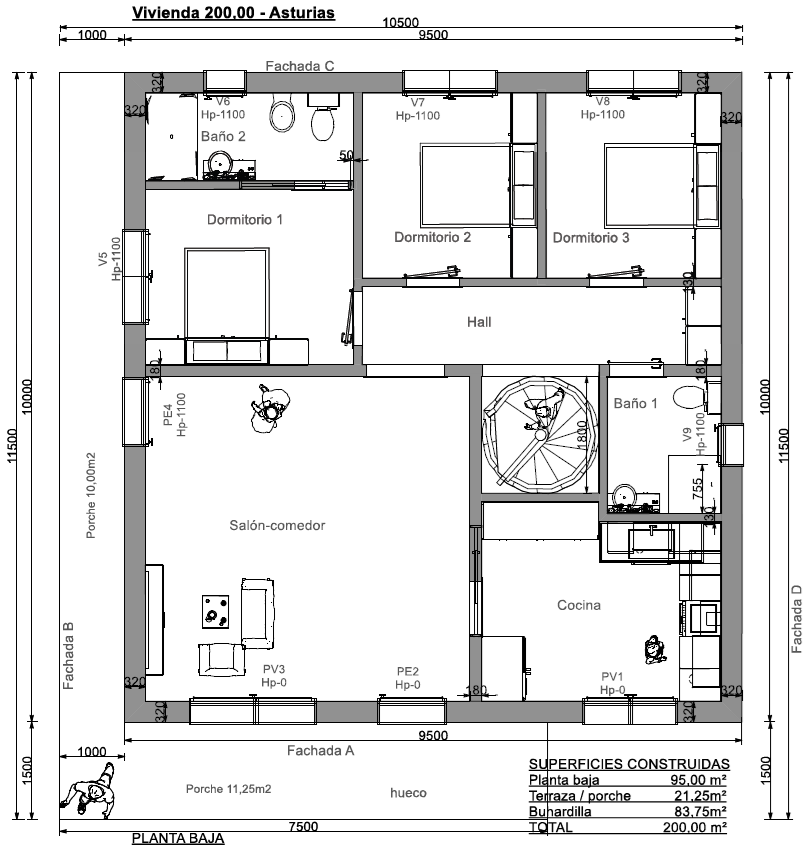
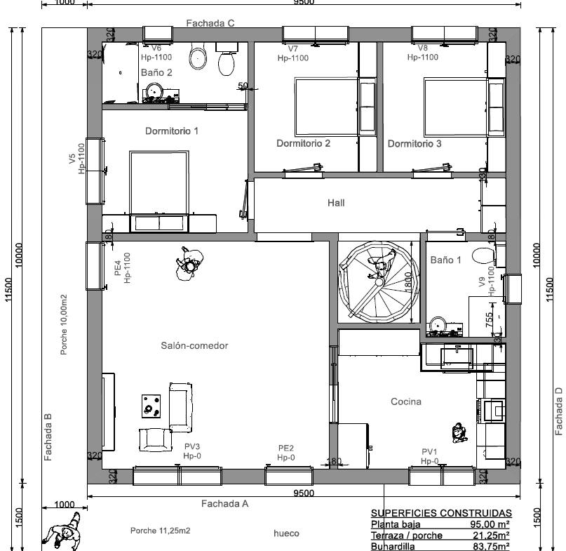
Distribución de la casa prefabricada pasiva con 5 dormitorios:
En la planta baja, salón-comedor, dormitorio principal con baño, otros dos dormitorios y un baño general, cocina.
En la planta alta, dos amplios dormitorios con dos baños y un cuarto.
Podemos modificar esta casa prefabricada a su gusto, contacta con nosotros y se lo haremos realidad a un precio razonable y con facilidades de pago.
Encuentra tu casa pasiva prefabricada de alta calidad que mejor se adapte a tus necesidades.


Visite nuestra pagina Facebook Construcción de Viviendas VME No te pierdes modelos de casas pasivas y fotos de casas prefabricadas modernas en proceso de construcción.