Casas entre medianeras modernas de construcción prefabricada con garaje
Precio a consultar en Oferta
El mortero específico para el revestimiento de fachadas es un producto que se aplica sobre la cara externa de los muros.
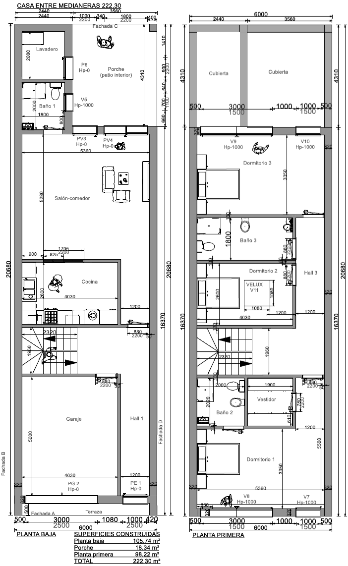
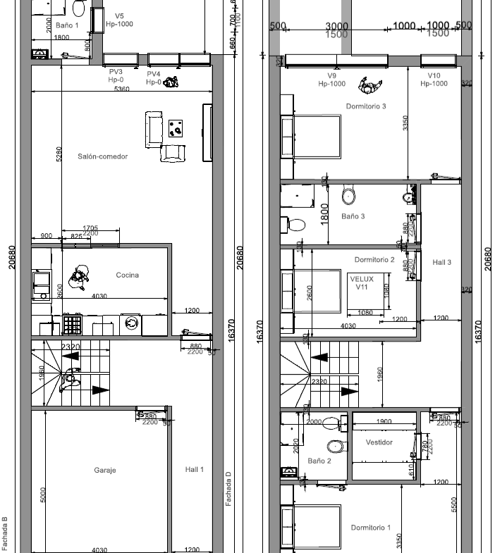
La distribución interior está pensada para aprovechar al máximo el espacio y la luz disponible.
En el dormitorio central se beneficia de la luz natural y la ventilación a través de la ventana Velux de techo.
Esta vivienda entre medianeras se distingue por su distribución familiar, con un amplio salón de y tres dormitorios en el piso superior. Además, cuenta con tres cuartos de baño y un garaje amplio.
Construcción Pasiva industrializadas Sostenible y Ahorro energético
Elige Calidad VME – Garantía de Construcción con Facilidades de Pago.


Construcción de Viviendas VME en Facebook, ver más fotos de casas entre medianeras prefabricadas, pasivas y modernas de hormigón y mortero de cemento de alta calidad en Madrid, Valencia y toda España.
Por favor ingrese su nombre de usuario o dirección de correo electrónico. Recibirá un enlace para crear una nueva contraseña por correo electrónico.
