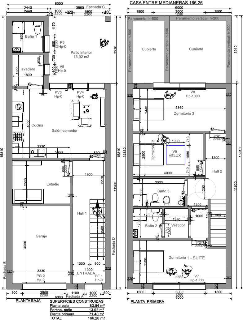
Modelo 166m2 con excelente revestimiento en hormigón coloreado, con garaje, 4 habitaciones, SUITE, 3 baños, salón, cocina, lavadero
Las viviendas industrializadas modulares entre medianeras VME, están diseñadas para ser energéticamente eficientes desde el principio. La posibilidad de integrar tecnologías como la aerotermia.
Las casas entre medianeras se están convirtiendo en una nueva forma de vida.
Las ventanas velux en el techo de las casas modulares entre medianeras son útiles no solo para permitir la entrada de la luz solar, sino también para hacer posible una ventilación cruzada del hogar.
Elige Casas entre medianeras con patio VME con Garantía de Construcción y Facilidades de Pago.


Construcción de Viviendas VME en Facebook, ver más fotos de casas entre medianeras con patio interior, pasivas y modernas de hormigón y mortero de cemento de alta calidad.
Por favor ingrese su nombre de usuario o dirección de correo electrónico. Recibirá un enlace para crear una nueva contraseña por correo electrónico.
