Casas entre medianeras modernas con garaje y patio interior con fachada de hormigón coloreado de alta calidad.
Una espectacular casa entre medianeras moderna para parcelas estrechas. Cada vez hay más familias que se decantan por comprar una vivienda entre medianeras con garaje y patio interior.
La ventilación y la iluminación natural de todos los espacios.
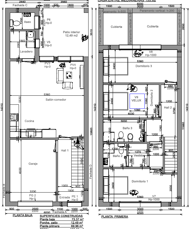
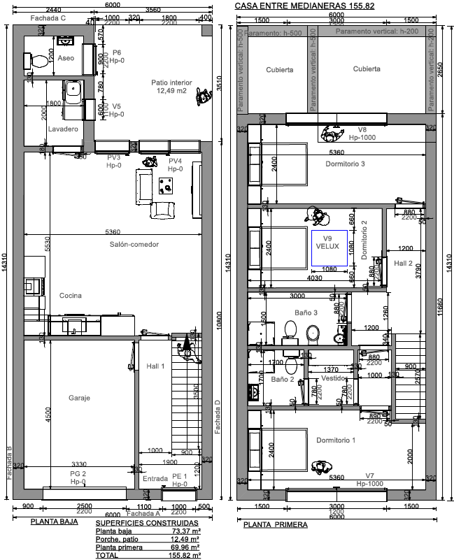
En la planta baja las estancias de día, una zona destinada a garaje, salón comedor, cocina, lavadero, un baño, una habitación que puede ser un espacio de trabajo o estudio.
En la primera planta, los dormitorios tres dormitorios uno es SUITE, dos baños.
El dormitorio central utiliza ventanas de tejado de la marca VELUX para aportar luz natural y ventilación.
Constructora de Casas entre medianeras modernas VME con Facilidades de Pago.


Construcción de Viviendas VME en Facebook, ver más fotos de casas entre medianeras modernas con patio interior, pasivas y modernas de hormigón y mortero de cemento.
Por favor ingrese su nombre de usuario o dirección de correo electrónico. Recibirá un enlace para crear una nueva contraseña por correo electrónico.
