Casas modernas cubicas de construcción prefabricada construida en 2020.
Gracias al extraordinario diseño de esta casa acabada en hormigón el saliente es aprovechado una vez más como porche ó cochera.
Fabulosa casa moderna en la que sobresale el volumen, en el que queda enmarcado un frontal saliente, que permite adentrarse en el alma y el espíritu de la casa.
Es una tendencia en la arquitectura moderna, jugar con los volúmenes de estructuras cúbicas modernas, superpuestas en diferente geometría.
Como un añadido a la fachada de esta vivienda prefabricada, la terminación superior de los muros exteriores en la cubierta, también merece nuestra atención.
Ya que los salientes verticales también conjuga bien con la estética general de esta moderna casa cubica prefabricada.
Esta claro y queda a la vista que en este diseño de casa moderna cubica, se ha priorizado la estética moderna, más allá de las cuestiones meramente estructurales.
Este es un ejemplo maravilloso de casas cubicas modernas prefabricadas de estilo minimalista.
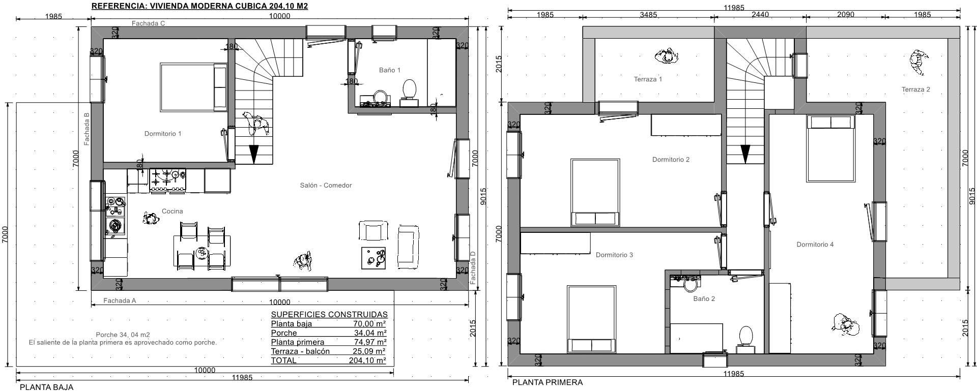
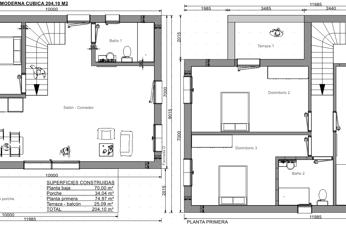
La Casa moderna cubica prefabricada está construida en dos niveles.
La planta baja de esta casa cubica moderna está compuesta por un salón muy grande y cocina al estilo americano, baño y un dormitorio.
En nivel de la planta primera esta construido por tres dormitorios amplios, un baño y dos terrazas.
El estilo de casa moderna minimalista está basado en la premisa de que “menos es más” poniendo en primer lugar la calidad en vez de la cantidad.
Las fachadas de estas casas cubicas modernas prefabricadas, son fácilmente identificables, ya que siguen todas las mismas pautas, son monocromáticas, modernas y sobretodo geométricas.
En esta opción, entregamos la vivienda con aislamientos ideales para casas pasivas prefabricadas o edificios de consumo casi nulo (nZEB).
Construimos la casa prefabricada moderna cubica con revestimiento de la cubierta, acabado final en fachadas de hormigón con sistema SATE y revestimiento en cemento coloreado.
Carpintería exterior de PVC cumple con el estándar de casas modernas pasivas. Cerramientos en OSB y revestimientos interiores modernos en PYL panel yeso laminado que reduce las fuerzas sísmicas y aumenta la protección pasiva frente al fuego.
Con nosotros, la calidad duradera de las casa prefabricadas modernas que construimos y el aspecto elegante y minimalista está garantizado. Y, además, te damos la opción de llevar la sostenibilidad tan lejos como tú quieras.


Construcción de Viviendas VME en facebook, ver más fotos de viviendas modernas prefabricadas y casas modernas cubicas en Madrid, Valencia, Barcelona y toda España.