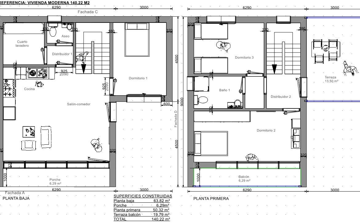
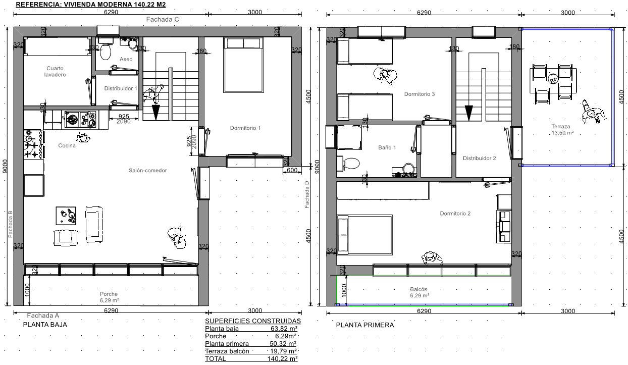
Casas modernas Modelo modelo Madrid 140,22 m2 construidos.
En esta opción, entregamos la casa prefabricada moderna con la cubierta finalizada.
Acabado final en fachadas con sistema SATE y revestimiento de hormigón y cemento coloreado.
Todas nuestras casas prefabricadas construidas cuenta con aislamientos ideales para casas pasivas o edificios de consumo casi nulo (nZEB).
Carpintería exterior de PVC de alta calidad para casas prefabricadas modernas pasivas.
Cerramientos en OSB y PYL de la casa prefabricada que reduce las fuerzas sísmicas de la casa prefabricada y aumenta la protección frente al fuego.
Casa prefabricada moderna con 3 dormitorios, salón, cocina, y 2 baños… Para más información respecto a la calidad constructiva de nuestras casas prefabricadas solicita presupuesto sin compromiso.


VME en Facebook Construcción de Viviendas VME para ver más casas prefabricadas modernas pasivas en construcción ó ya finalizadas en Madrid y toda España.
Por favor ingrese su nombre de usuario o dirección de correo electrónico. Recibirá un enlace para crear una nueva contraseña por correo electrónico.
