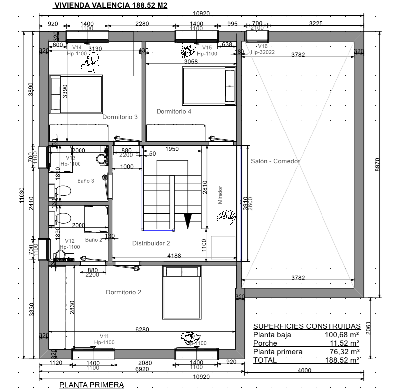
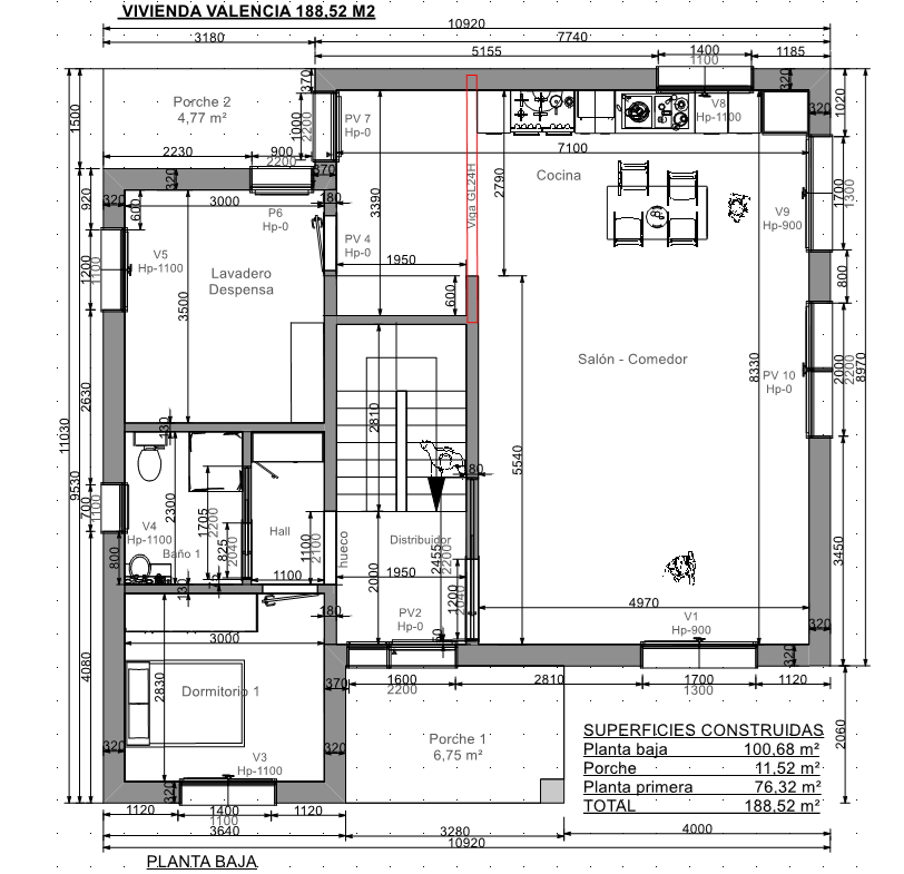
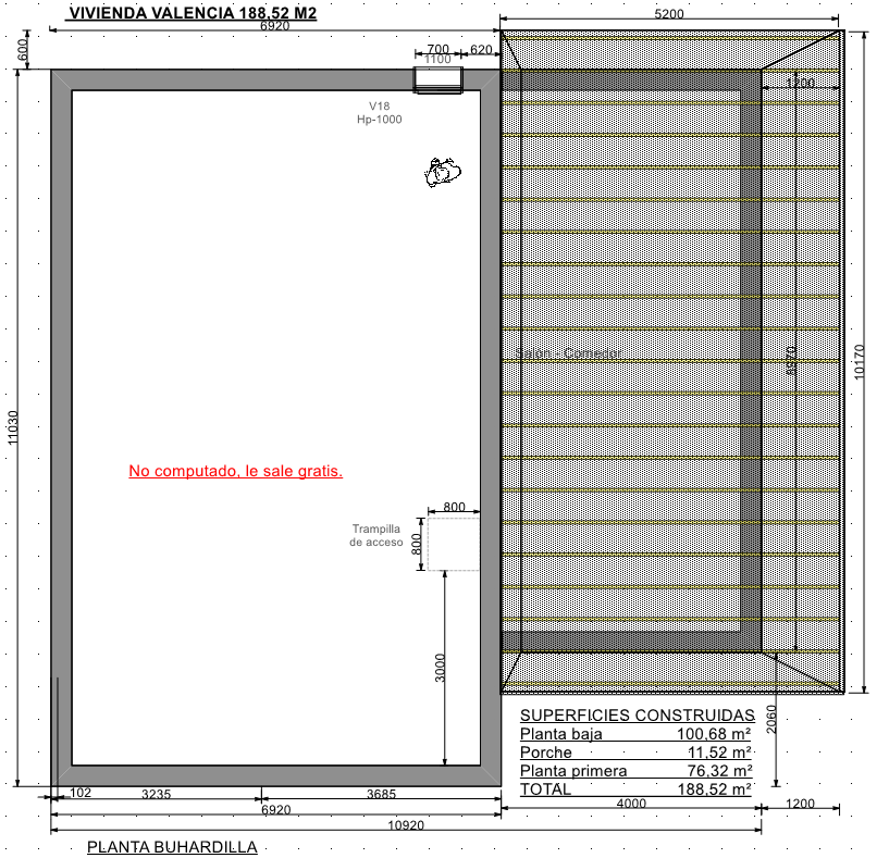
Casas Pasivas Prefabricadas acabadas con hormigón en Oferta – Modelo Valencia de 188,52 m2, construida en la Comunidad Valenciana en 2017.
Esta casa prefabricada pasiva de alta calidad es un proyecto de vivienda unifamiliar aislada totalmente personalizada. Es una casa pasiva prefabricada amplia de estilo más moderno, con techo inclinado con un salón enorme.
¿Quieres construir tu vivienda prefabricada pasiva, pero no quieres pagar las obras por adelantado?
Si tienes un presupuesto ajustado contáctenos, podemos construirlo desde cero y el coste total puede ajustarse mejor a tus posibilidades. Empieza tu Proyecto de Construcción Modular Descubre cómo ahorrar tiempo y costes con soluciones prefabricadas sostenibles.
Personalizamos cada modelo de vivienda prefabricada adaptándolo a los gustos y necesidades de cada cliente..


Visite nuestra pagina Facebook Construcción de Viviendas VME No te pierdes nuestras casas prefabricadas y viviendas pasivas que construimos.
Por favor ingrese su nombre de usuario o dirección de correo electrónico. Recibirá un enlace para crear una nueva contraseña por correo electrónico.
