Casas prefabricadas 120m2 precio económico en Oferta.
Una acogedora casa prefabricada moderna con fachada de hormigón y de vidrio. Es una casa prefabricada moderna con unas plantas asimétricas que aprovecha al máximo su espacio sin complicar su distribución interior.
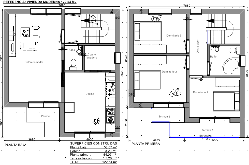
Este modelo de 122,54 m2 construidos, es una casa prefabricada moderna con fachada de hormigón y grandes ventanas, se distribuye en dos niveles.
Con esta solución, la casa prefabricada tiene un aire más moderno y útil.
En la planta baja la casa prefabricada moderna consta de tres dormitorios, un baño, un aseo, salón, cocina, cuarto lavadero y un porche.
En la planta primera se ubican los espacios más íntimos, como dos dormitorios con terrazas, otra habitación para dormitorio de invitados o despacho y un baño.
Las casas modernas prefabricadas VME de alta calidad son funcionales y se adaptan muy bien al paso del tiempo. Podemos modificar esta casa prefabricada a su gusto, contacta con nosotros y se lo haremos realidad a un precio razonable y con facilidades de pago.
La estética y la sostenibilidad se combina, creando nuevos estilos con lo mejor de cada una de estas corrientes.


VME en Facebook Construcción de Viviendas VME para ver más casas prefabricadas modernas pasivas en Vigo y toda España.
Por favor ingrese su nombre de usuario o dirección de correo electrónico. Recibirá un enlace para crear una nueva contraseña por correo electrónico.
