Construcción de Casas prefabricadas modernas VME con acabado en hormigón con 3 dormitorios. Viviendas sostenibles con facilidades de pago.
¿Sabías que con nosotros No pagarás las obras por adelantado?
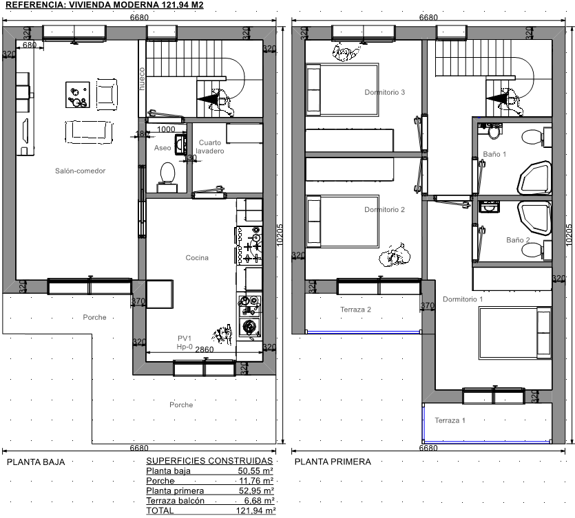
Superficie total construida 121,94 m2.
Modelo perfecto para clientes que buscan una vivienda prefabricada moderna que cumple con altos aislamientos tipo casas pasivas.
Es una casa prefabricada con 3 dormitorios, fachada de hormigón de estilo moderno, cuenta con dos plantas diseñadas mediante volúmenes cúbicos y minimalistas.
Las casas prefabricadas pasivas VME cuentan con un sistema de aislamiento perfecto y estanqueidad perfecta.
Casas prefabricadas modernas 120m2 VME con calificación energética A además con facilidades de pago.
Viviendas VME aporta un presupuesto totalmente desglosado en partes para garantizar el cumplimiento del contrato.


VME en Facebook Construcción de Viviendas VME para ver más casas prefabricadas de 120m2.
Por favor ingrese su nombre de usuario o dirección de correo electrónico. Recibirá un enlace para crear una nueva contraseña por correo electrónico.
