Casas prefabricadas Asturias de estilo más tradicional con fachada de hormigón. Asturias el destino soñado para miles de personas por sus hermosos paisajes.
Es un modelo de casa prefabricada con fachada de hormigón de color crema, diseñado y construido a medida, pensada desde la implantación en la parcela y las necesidades del cliente.
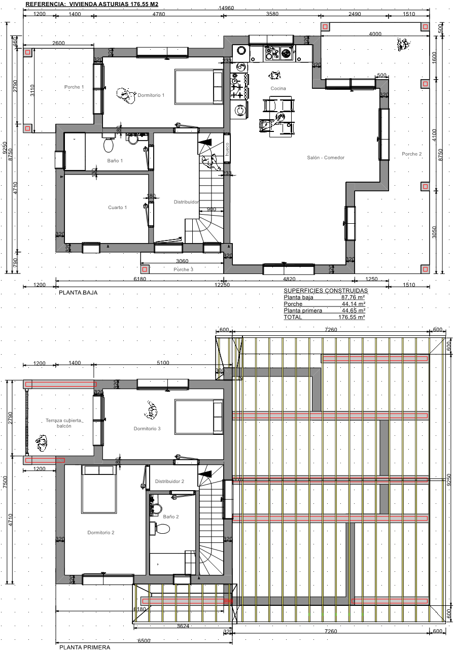
Vivienda prefabricada de dos plantas con tres porches en la planta baja y una terraza en la planta alta que configuran una vivienda funcional con el programa completo en planta baja y zona de día en planta primera.
Tiene todo lo que necesitas para disfrutar. Y como en todas nuestras casas, podrás elegir la distribución que prefieras.
En la planta baja, salón comedor, cocina, un distribuidor grande, cuarto, un baño, un dormitorio y tres porches en las fachadas A, B y D.
En la planta alta, un distribuidor, dos dormitorios, un baño y una terraza cubierta.
Un modelos de vivienda perfecto para clientes que buscan un diseño original en planta, creando una zona de porche para disfrutar en varias zonas de la vivienda.
– Diseñamos y construimos casas a medida
– Cumple con el estándar de Casa Pasiva
– Elige calidad, confianza y garantía con facilidades de pago
– Elige experiencia respaldada con más de 450 viviendas construidas – Anteproyecto le sale gratis.
En esta opción, entregamos la casa prefabricada con aislamientos ideales para casas pasivas prefabricadas o edificios de consumo casi nulo (nZEB).
Casa prefabricada con la teja puesta, acabado final en fachadas de hormigón con sistema SATE y revestimiento en cemento coloreado.
Carpintería exterior de PVC de alta calidad para casas prefabricadas pasivas.
Cerramientos completos de la casa prefabricada exteriores, interiores que reduce las fuerzas sísmicas de la casa prefabricada y aumenta la protección frente al fuego.
Descubre nuestro catálogo de viviendas prefabricadas modernas ó de estilo más tradicional.


Visite nuestra pagina Facebook Construcción de Viviendas VME Para ver más fotos de viviendas prefabricadas en Asturias, Valencia, Madrid, Barcelona y toda España.