Casas prefabricadas Castellón modelo VME 132,30m2 es una vivienda moderna con fachada de hormigón construida en 2024 en Castellón.
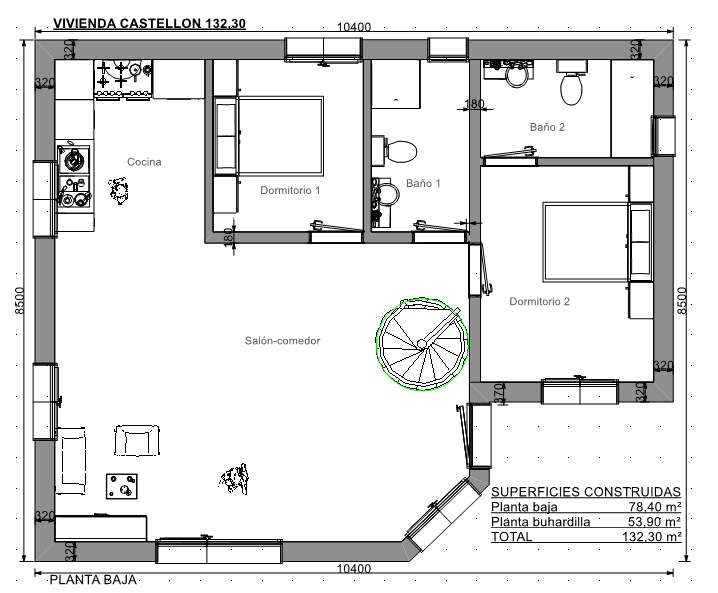
Es una vivienda con cubierta inclinada en planta baja con 2 dormitorios, cocina y un salón en doble altura espectacular y una planta primera abuhardillada muy acogedora con 1 dormitorio y un baño amplio.
Gracias a la condición solida y térmica de estos materiales, en el interior de la vivienda existen temperaturas frescas y templadas, como consecuencia en la casa se reduce el consumo de energía eléctrica.
Cerramientos estructurales de las casas prefabricadas VME que reduce las fuerzas sísmicas y aumenta la protección de la estructura frente al fuego.
Debido al sistema de construcción los materiales que se emplean son de poca conductividad termo-acústicos, incombustibles en su reacción frente al fuego Euroclase A1, hidrófugos, cómo placa de poliestireno (EPS, XPS), lana de roca mineral, mortero, hormigón…
Logramos edificios eficientes y respetuosos con el medioambiente, sobre todo aislamientos ideales para casas pasivas o edificios de consumo casi nulo (nZEB).
Encuentra en nuestra web tu casa pasiva prefabricada de alta calidad que mejor se adapte a tus necesidades.


Visite nuestra pagina Facebook Construcción de Viviendas VME para ver más casas prefabricadas de alta calidad en Castellón, Valencia, Madrid, Barcelona y toda España.
Por favor ingrese su nombre de usuario o dirección de correo electrónico. Recibirá un enlace para crear una nueva contraseña por correo electrónico.
